Price: $430,000
236 W Lake Ina DriveWinter Haven, FL 33881
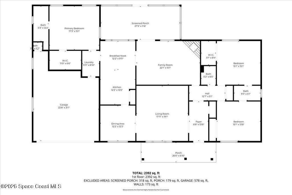
2,576
Square Foot
3
Bedrooms
4.00
Full Baths
2
½ Baths
No
Pool
Yes
Waterfront
1979
Year Built
Property Description:
Live the lake life you've been dreaming of in this beautifully maintained 3-bedroom, 2-bath home in Winter Haven! Perfectly positioned for those who love being on the water, this property offers lake access with use of two community docks ideal for boating, fishing, or catching stunning Florida sunsets. Step inside to find a bright, comfortable layout enhanced by new windows that fill the home with natural light. Major updates have already been taken care of, including a newer roof, HVAC system, water heater, new garage door giving buyers peace of mind and true move-in-ready convenience. The easy access to the docks makes it simple to embrace an active, outdoor lifestyle without the high price of direct waterfront. Located just minutes from LEGOLAND Florida Resort, shopping, dining, and entertainment, this home offers the perfect balance of adventure and convenience. Whether you're a boating enthusiast, weekend adventurer, or simply someone who loves being near the water, this property
Exterior Features
N/A
Interior Features:
Breakfast Nook, Entrance Foyer, Pantry, Split Bedrooms, Walk-In Closet(s)
Equipment / Appliances:
Dishwasher, Electric Oven, Electric Range, Microwave, Refrigerator
Utilities:
Other
Property Details
Street Name:
County:
Polk
Listing Status:
Active
Floor:
Carpet, Tile, Vinyl
Tax Year:
2025
Pool:
No
Private Pool:
No
Waterfront:
Yes
Water Type:
Zip Code:
Subdivision:
None
Construction:
Block, Stucco
Roof Type:
Shingle
Tax Amount:
$4,971
Fireplace:
Wood Burning
Furnishings:
Negotiable
Home View:
Lake
Parking:
Garage
HOA Dues:
$0.00

236 W Lake Ina Drive Winter Haven, FL 33881
This listing is courtesy of Relentless Real Estate Co..
Real Estate and Luxury homes in Melbourne Beach, Merritt Island, Cocoa Beach, Lansing Island, Tortoise Island, Vero Beach, Barefoot Bay, Cape Canaveral, Cocoa, Grant Valkaria, Indialantic, Indian Harbour Beach, Malabar, Melbourne, Palm Bay, Rockledge, Satellite Beach, Titusville, West Melbourne and surrounding areas in Brevard and Central Florida.
Property Listing Data contained within this site is the property of Brevard MLS and is provided for consumers looking to purchase real estate. Any other use is prohibited. We are not responsible for errors and omissions on this web site. All information contained herein should be deemed reliable but not guaranteed, all representations are approximate, and individual verification is recommended.

Share: