Price: $105,000
S Hopkins AvenueTitusville, FL 32796
0
Square Foot
N/A
Bedrooms
0.00
Full Baths
N/A
½ Baths
Property Description:
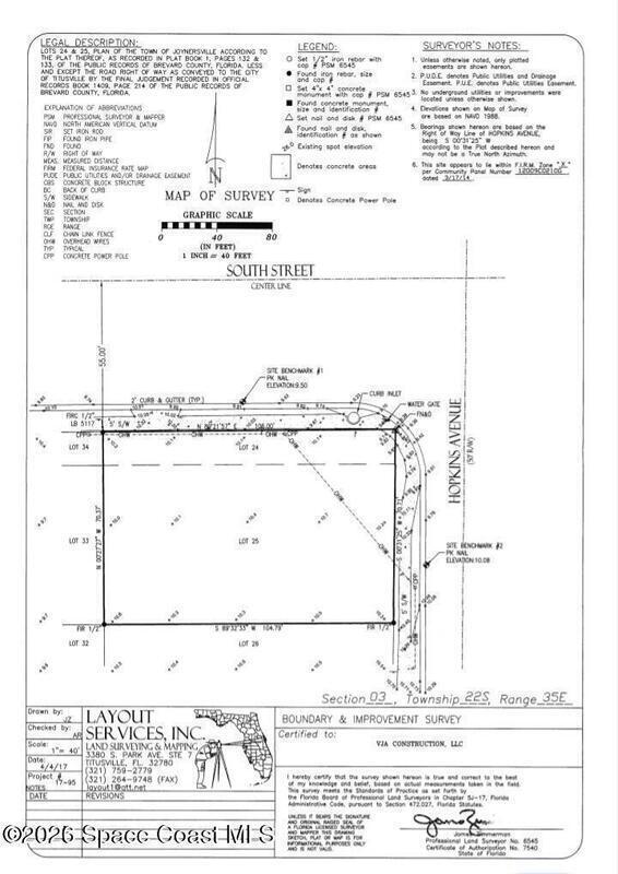
Seller willing to hold note. Commercial/Residential/Multi-Family opportunity on this vacant cornet lot in the heart of Down Town Titusville, Florida's Space Coast. Walking distance to Restaurants, Titusville Playhouse, The Indian River, Museums, Boutiques, Art Galleries, Night Life, Gyms, Breweries, Biking Trails and so much more. Seller had a quad plex permit approved at one time, set backs and zoning completed. All that is left to do, is renew the permit and have the engineering done.
Exterior Features
N/A
Interior Features:
N/A
Equipment / Appliances:
N/A
Utilities:
N/A
Property Details
Subdivision:
None
Tax Amount:
$689
HOA Dues:
$0.00

S Hopkins Avenue Titusville, FL 32796
This listing is courtesy of Mutter Realty.
Real Estate and Luxury homes in Melbourne Beach, Merritt Island, Cocoa Beach, Lansing Island, Tortoise Island, Vero Beach, Barefoot Bay, Cape Canaveral, Cocoa, Grant Valkaria, Indialantic, Indian Harbour Beach, Malabar, Melbourne, Palm Bay, Rockledge, Satellite Beach, Titusville, West Melbourne and surrounding areas in Brevard and Central Florida.
Property Listing Data contained within this site is the property of Brevard MLS and is provided for consumers looking to purchase real estate. Any other use is prohibited. We are not responsible for errors and omissions on this web site. All information contained herein should be deemed reliable but not guaranteed, all representations are approximate, and individual verification is recommended.

Share: