Price: $749,900
Hazel LaneMalabar, FL 32950
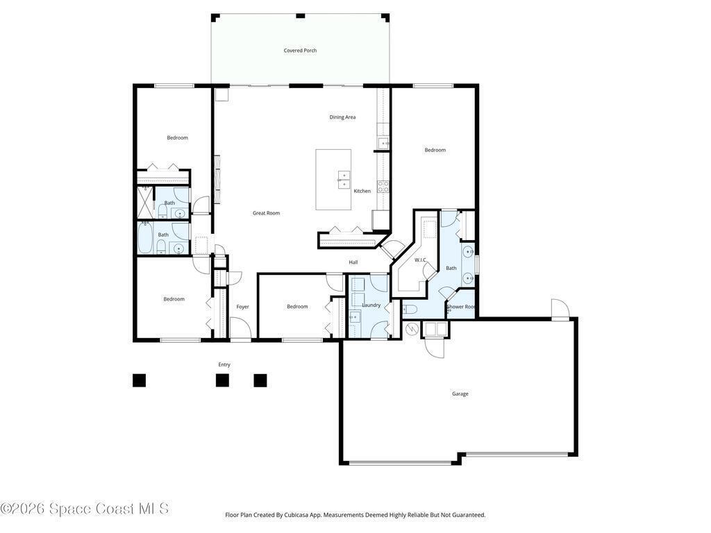
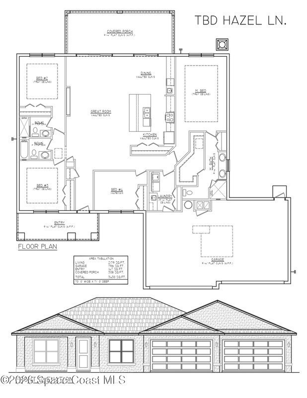
2,179
Square Foot
4
Bedrooms
3.00
Full Baths
N/A
½ Baths
No
Pool
No
Waterfront
2026
Year Built
Property Description:
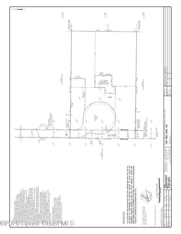
Brand New Custom Construction | 4-Car Garage | 1.4 Acre Lot | Completion Summer 2026. Experience luxury living in this stunning to be built custom home, situated on an expansive 1.4-acre lot in a private nature setting. This home features high-end finishes, thoughtful design, and builder warranties for peace of mind. Step inside to an open-concept floor plan with vaulted and soaring ceilings, fireplace, creating a bright and spacious atmosphere perfect for modern living and entertaining. The designer kitchen is a true centerpiece, featuring: Large center island, Quartz countertops, 42'' custom wood cabinets with crown molding, Stainless steel appliances, Extended wet bar with sink and beverage cooler. The split-bedroom layout provides privacy, while the luxurious primary suite includes: Elegant tray ceiling, Large walk-in closets, Double sink Quartz vanity, Custom tiled walk-in shower. Additional highlights include: Upgraded 9'' x 47'' hardwood-style porcelain plank tile throughout
Exterior Features
Storm Shutters
Interior Features:
Breakfast Bar, Ceiling Fan(s), Entrance Foyer, Kitchen Island, Open Floorplan, Pantry, Primary Bathroom - Shower No Tub, Split Bedrooms, Walk-In Closet(s), Wet Bar
Equipment / Appliances:
Dishwasher, Electric Range, Electric Water Heater, Microwave, Wine Cooler
Utilities:
Cable Available, Electricity Available
Property Details
Street Name:
County:
Brevard
Listing Status:
Active
Home Style:
Contemporary
Floor:
Carpet, Tile
Tax Year:
2022
Pool:
No
Private Pool:
No
Waterfront:
No
Zip Code:
Subdivision:
None
Construction:
Block, Stucco
Roof Type:
Shingle
Tax Amount:
$333
Furnishings:
Unfurnished
Parking:
Attached, Garage Door Opener
HOA Dues:
$0.00
Additional Rooms:
Bedroom 2, Bedroom 3, Bedroom 4, Dining Room, Great Room, Kitchen, Other Room, Primary Bedroom

Hazel Lane Malabar, FL 32950
This listing is courtesy of Waterman Real Estate, Inc..
Real Estate and Luxury homes in Melbourne Beach, Merritt Island, Cocoa Beach, Lansing Island, Tortoise Island, Vero Beach, Barefoot Bay, Cape Canaveral, Cocoa, Grant Valkaria, Indialantic, Indian Harbour Beach, Malabar, Melbourne, Palm Bay, Rockledge, Satellite Beach, Titusville, West Melbourne and surrounding areas in Brevard and Central Florida.
Property Listing Data contained within this site is the property of Brevard MLS and is provided for consumers looking to purchase real estate. Any other use is prohibited. We are not responsible for errors and omissions on this web site. All information contained herein should be deemed reliable but not guaranteed, all representations are approximate, and individual verification is recommended.

Share: