Price: $529,900
6355 S Highway A1AMelbourne Beach, FL 32951
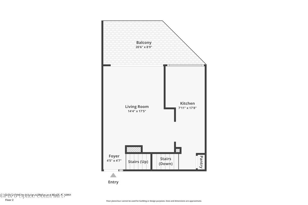
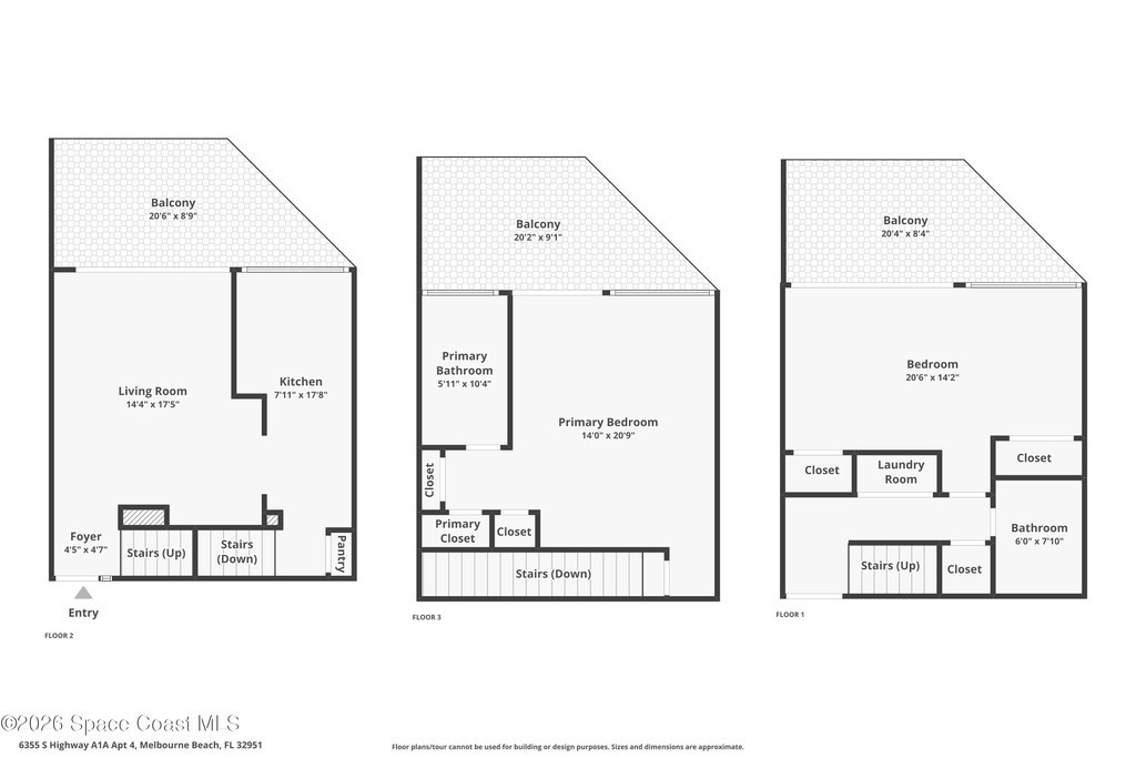
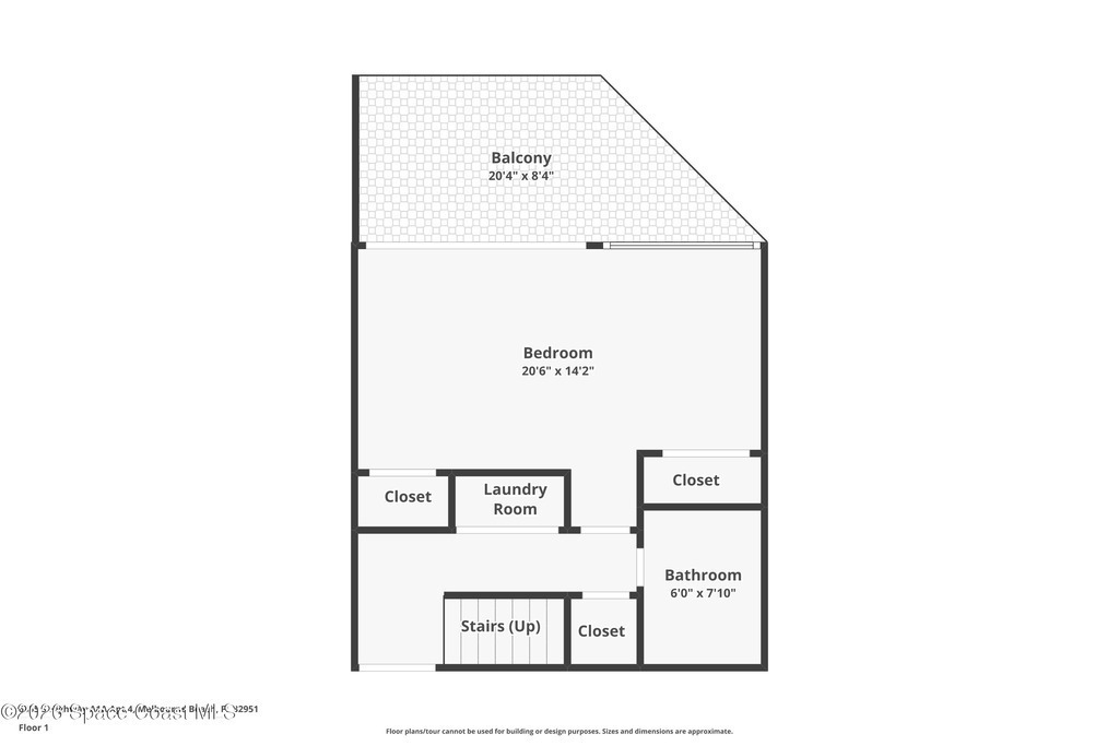
1,256
Square Foot
2
Bedrooms
2.00
Full Baths
N/A
½ Baths
No
Pool
Yes
Waterfront
1986
Year Built
Property Description:
OPEN SATURDAY 1-3PM! Unique & Private Building ~Only 11 Units In The Complex.Rare One Month Minimum Rental Period Offers Rental Flexibility.3 balconies, no carpet, tile throughout - including wood like tile and travertine in the primary suite, , all impact windows and sliders, plus accordion shutters on 1st and 2nd floor balconies, New murphy bed in downstairs suite, new Samsung fridge, new LG washer and dryers, new interior paint, new white rocker panel electric switches and outlets, new satin nickel doorknobs and fixtures, new closet system in primary closet. granite counters in kitchen, new 2024 Daikin AC, 2021 ~ Newer Roof, One of the ONLY Solid Poured Concrete Condos In Brevard - Keeps You Safe & Is Structurally Sound** Includes 9' X 5' Storage Unit. ***Property underwent concrete restoration in 2018 so no upcoming assessments, SIRS and Milestone Inspection Complete. HOA is financially sound and in excellent shape.
Exterior Features
Balcony, Impact Windows, Outdoor Shower, Storm Shutters
Interior Features:
Breakfast Bar, Built-in Features, Guest Suite, His and Hers Closets, Open Floorplan, Pantry, Primary Bathroom - Tub with Shower, Split Bedrooms
Equipment / Appliances:
Dishwasher, Electric Oven, Electric Water Heater, Microwave, Refrigerator, Washer/Dryer Stacked
Utilities:
Cable Available, Electricity Connected, Sewer Not Available, Water Connected
Property Details
Street Name:
County:
Brevard
Listing Status:
Active
Floor:
Tile
Tax Year:
2025
Pool:
No
Private Pool:
No
Waterfront:
Yes
Water Type:
Zip Code:
Subdivision:
Gullhouse III Condo
Construction:
Block, Concrete, Stucco
Tax Amount:
$5,078
Furnishings:
Unfurnished
Home View:
Beach, Ocean, Water
Parking:
Covered
HOA Dues:
$0.00

6355 S Highway A1A Melbourne Beach, FL 32951
This listing is courtesy of Compass Florida, LLC.
Real Estate and Luxury homes in Melbourne Beach, Merritt Island, Cocoa Beach, Lansing Island, Tortoise Island, Vero Beach, Barefoot Bay, Cape Canaveral, Cocoa, Grant Valkaria, Indialantic, Indian Harbour Beach, Malabar, Melbourne, Palm Bay, Rockledge, Satellite Beach, Titusville, West Melbourne and surrounding areas in Brevard and Central Florida.
Property Listing Data contained within this site is the property of Brevard MLS and is provided for consumers looking to purchase real estate. Any other use is prohibited. We are not responsible for errors and omissions on this web site. All information contained herein should be deemed reliable but not guaranteed, all representations are approximate, and individual verification is recommended.

Share: