Price: $475,000
2246 Warwick RoadMelbourne, FL 32935
3,000
Square Foot
5
Bedrooms
6.00
Full Baths
2
½ Baths
No
Pool
No
Waterfront
2014
Year Built
Property Description:
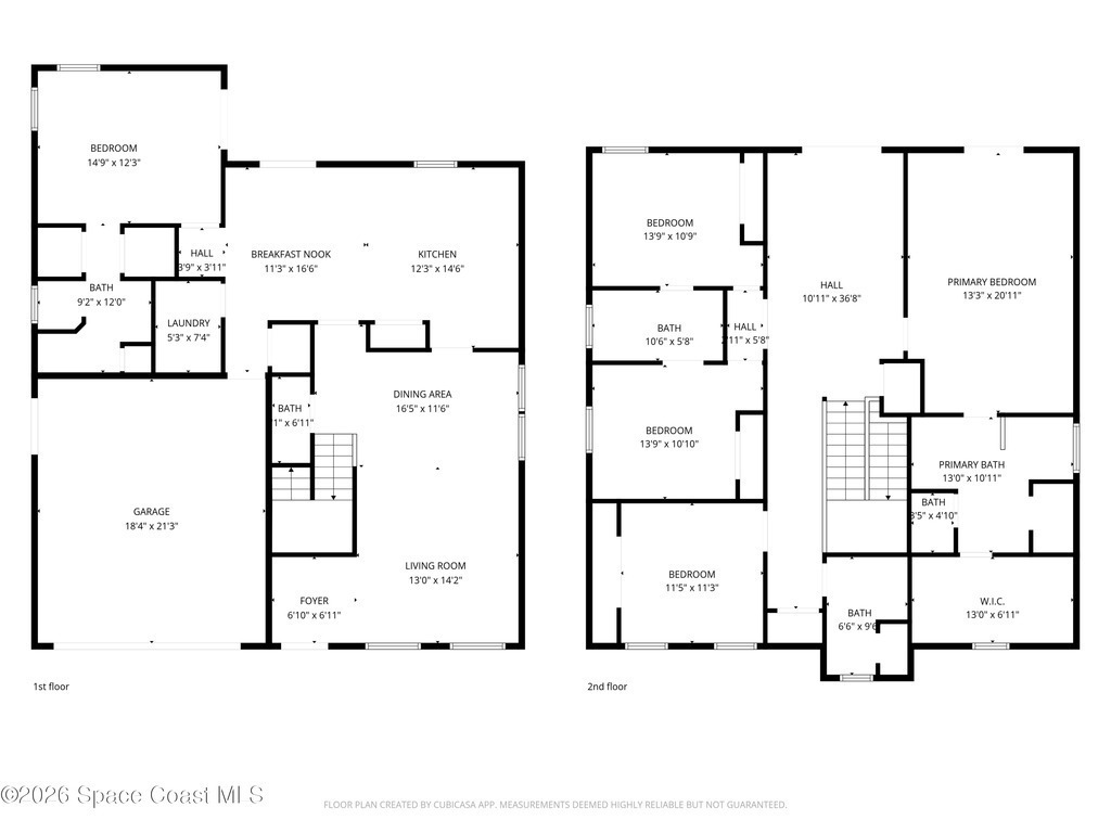
New Owner Wanted! 2 Story Block / Frame / Stucco (2014)! 5 Bedrooms 4 Full Bathrooms & TWO 1/2 Baths! Almost 3000SF! Huge Family Room Downstairs! Large Den/Game Room Upstairs! Split Bedrooms! City WATER & SEWER! Large Kitchen w/ Separate Breakfast Area! Solid Wood 42'' Cabinets w/ Granite Countertops! Stainless Steel Appliances! Kitchen Exhaust Vent Outside! Stainless-Steel Appliances! Tile Flooring Downstairs! Laminate Flooring Upstairs! Large Master Bedroom w/ Walk-in Closet! Master Bath w/ Tub, Walk-in Shower! Mother-In-Law / Guest Suite Downstairs w/ Walk-in Shower! 3 Full Bathrooms Upstairs (1 Jack & Jill Bath)! NO HOA/CDD/Community/Association Fees! Laundry Inside w/ Utility Sink! Large Patio Downstairs w/ Private Half Bath! 2 Sliding Doors to Downstairs Patio! Large Patio Upstairs to enjoy the Lake View! 2 French Doors to Upstairs Patio! Backyard Completely Fenced w/ White Vinyl & Wood! 2 Car Garage w/ Door! RV/Boat/Recreational & Work Vehicle Parking! Room for 6 Vehicles in Drive
Exterior Features
Balcony
Interior Features:
Breakfast Bar, Ceiling Fan(s), Eat-in Kitchen, In-Law Floorplan, Jack and Jill Bath, Pantry, Primary Bathroom -Tub with Separate Shower, Smart Thermostat, Split Bedrooms, Walk-In Closet(s)
Equipment / Appliances:
Dishwasher, Disposal, Electric Range, Electric Water Heater, Microwave, Refrigerator
Utilities:
Cable Connected, Electricity Connected, Sewer Connected, Water Connected
Property Details
Street Name:
County:
Brevard
Listing Status:
Active
Home Style:
Ranch
Floor:
Laminate, Tile
Tax Year:
2025
Pool:
No
Private Pool:
No
Waterfront:
No
Zip Code:
Subdivision:
Sherwood Park Sec H
Construction:
Block, Frame, Stucco
Roof Type:
Shingle
Tax Amount:
$7,922
Furnishings:
Unfurnished
Home View:
Lake, Other
Parking:
Attached, Garage
HOA Dues:
$0.00

2246 Warwick Road Melbourne, FL 32935
This listing is courtesy of Dalton Wade Inc..
Real Estate and Luxury homes in Melbourne Beach, Merritt Island, Cocoa Beach, Lansing Island, Tortoise Island, Vero Beach, Barefoot Bay, Cape Canaveral, Cocoa, Grant Valkaria, Indialantic, Indian Harbour Beach, Malabar, Melbourne, Palm Bay, Rockledge, Satellite Beach, Titusville, West Melbourne and surrounding areas in Brevard and Central Florida.
Property Listing Data contained within this site is the property of Brevard MLS and is provided for consumers looking to purchase real estate. Any other use is prohibited. We are not responsible for errors and omissions on this web site. All information contained herein should be deemed reliable but not guaranteed, all representations are approximate, and individual verification is recommended.

Share: