Price: $710,000
1525 W Riviera DriveMerritt Island, FL 32952
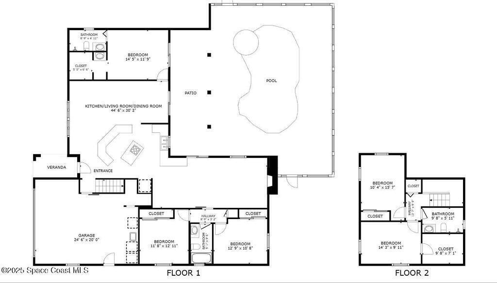
2,409
Square Foot
5
Bedrooms
3.00
Full Baths
N/A
½ Baths
No
Pool
Yes
Waterfront
1977
Year Built
Property Description:
Beautiful direct canal 5 bedroom, 3 bath home with a pool and spa. Lap in luxury, this home has it all. A great home for entertaining, boating or just relaxing. The canal leads to the Banana River and is close to Port Canaveral. Features include a master bedroom downstairs and has a solar heated pool with built in grill, built in bar with wine cooler and a screened in lanai with patio pavers. Designed with an open floor plan with a split bedroom. Second story has 2 bedrooms and a full bath. This home has granite tops, plantation blinds, gas fireplace, a shed, a generator, natural gas and a dock with a boat lift. Home has a been well maintained and has so many upgrades along with landscaping throughout the the front and back of the home . This home is priced to sell.
Exterior Features
Boat Lift, Boat Slip, Dock
Interior Features:
Breakfast Bar, Breakfast Nook, Entrance Foyer, Kitchen Island, Open Floorplan, Split Bedrooms
Equipment / Appliances:
Dishwasher, Gas Water Heater, Microwave, Refrigerator, Wine Cooler
Utilities:
Cable Available, Electricity Available, Natural Gas Available, Natural Gas Connected, Sewer Connected, Water Connected
Property Details
Street Name:
County:
Brevard
Listing Status:
Active
Floor:
Carpet, Tile
Tax Year:
2022
Pool:
No
Private Pool:
No
Waterfront:
Yes
Water Type:
Zip Code:
Subdivision:
Surfside Estates Unit 5
Construction:
Block, Frame, Stucco
Roof Type:
Shingle
Tax Amount:
$3,300
Fireplace:
Gas
Furnishings:
Unfurnished
Home View:
Water
Parking:
Additional Parking, Garage
HOA Dues:
$0.00

1525 W Riviera Drive Merritt Island, FL 32952
This listing is courtesy of All Real Estate, Inc..
Real Estate and Luxury homes in Melbourne Beach, Merritt Island, Cocoa Beach, Lansing Island, Tortoise Island, Vero Beach, Barefoot Bay, Cape Canaveral, Cocoa, Grant Valkaria, Indialantic, Indian Harbour Beach, Malabar, Melbourne, Palm Bay, Rockledge, Satellite Beach, Titusville, West Melbourne and surrounding areas in Brevard and Central Florida.
Property Listing Data contained within this site is the property of Brevard MLS and is provided for consumers looking to purchase real estate. Any other use is prohibited. We are not responsible for errors and omissions on this web site. All information contained herein should be deemed reliable but not guaranteed, all representations are approximate, and individual verification is recommended.

Share: