Price: $774,900
575 Stoney Brook Farm CourtVero Beach, FL 32968
3,141
Square Foot
3
Bedrooms
4.00
Full Baths
1
½ Baths
No
Pool
Yes
Waterfront
2007
Year Built
Property Description:
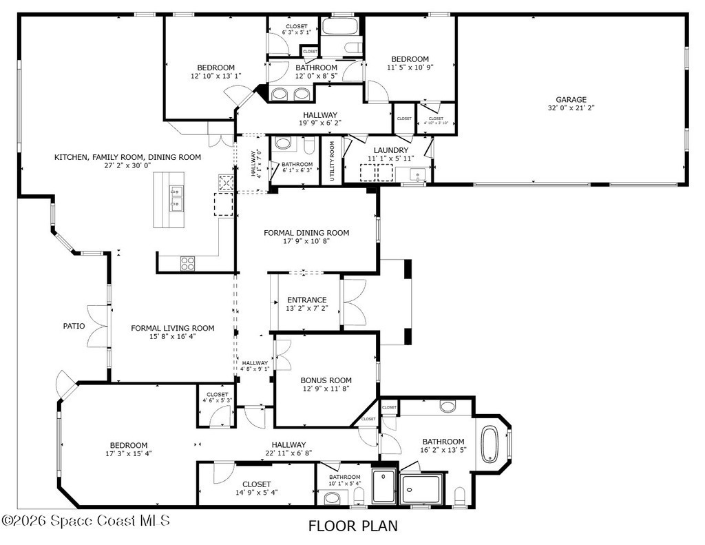
Timeless elegance meets Mediterranean-inspired design in this refined waterfront estate, ideally set on an oversized .39-acre fountained lot in the gated community of Stoney Brook Farm in Vero Beach. Offering over 3, 100 square feet under air and nearly 4, 200 square feet total, this thoughtfully designed residence features 3 bedrooms, 3.5 baths, a den/office, and an expansive 3-car garage. A split floor plan provides privacy, with a grand primary suite showcasing tranquil water views, two walk-in closets, and dual ensuite baths. Wall-to-wall windows, volume ceilings, crown molding, and elegant architectural details fill the home with natural light. Recent renovations include premium Karndean Art Select LVT flooring (no carpet), fresh interior paint, custom closet systems in all bedrooms, new ceiling fans, recessed LED lighting, oversized window moldings, and a beautifully remodeled powder room. Community amenities include a clubhouse, fitness center, tennis, and resort-style pool.
Exterior Features
Storm Shutters
Interior Features:
Breakfast Bar, Ceiling Fan(s), Central Vacuum, Eat-in Kitchen, Entrance Foyer, His and Hers Closets, Jack and Jill Bath, Kitchen Island, Open Floorplan, Other, Primary Bathroom -Tub with Separate Shower, Split Bedrooms, Walk-In Closet(s)
Equipment / Appliances:
Dishwasher, Disposal, Double Oven, Electric Cooktop, Electric Water Heater, Microwave, Refrigerator
Utilities:
Cable Available, Electricity Connected, Sewer Connected, Water Connected
Property Details
Street Name:
County:
Indian River
Listing Status:
Active
Home Style:
Spanish, Traditional
Floor:
Tile, Vinyl
Tax Year:
2025
Pool:
No
Private Pool:
No
Waterfront:
Yes
Water Type:
Zip Code:
Subdivision:
None
Construction:
Block, Stucco
Roof Type:
Tile
Tax Amount:
$7,797
Furnishings:
Unfurnished
Home View:
Lake
Parking:
Garage, Garage Door Opener
HOA Dues:
$0.00

575 Stoney Brook Farm Court Vero Beach, FL 32968
This listing is courtesy of MAR Y SOL Properties LLC.
Real Estate and Luxury homes in Melbourne Beach, Merritt Island, Cocoa Beach, Lansing Island, Tortoise Island, Vero Beach, Barefoot Bay, Cape Canaveral, Cocoa, Grant Valkaria, Indialantic, Indian Harbour Beach, Malabar, Melbourne, Palm Bay, Rockledge, Satellite Beach, Titusville, West Melbourne and surrounding areas in Brevard and Central Florida.
Property Listing Data contained within this site is the property of Brevard MLS and is provided for consumers looking to purchase real estate. Any other use is prohibited. We are not responsible for errors and omissions on this web site. All information contained herein should be deemed reliable but not guaranteed, all representations are approximate, and individual verification is recommended.

Share: