Price: $279,900
401 Whealan StreetPalm Bay, FL 32908
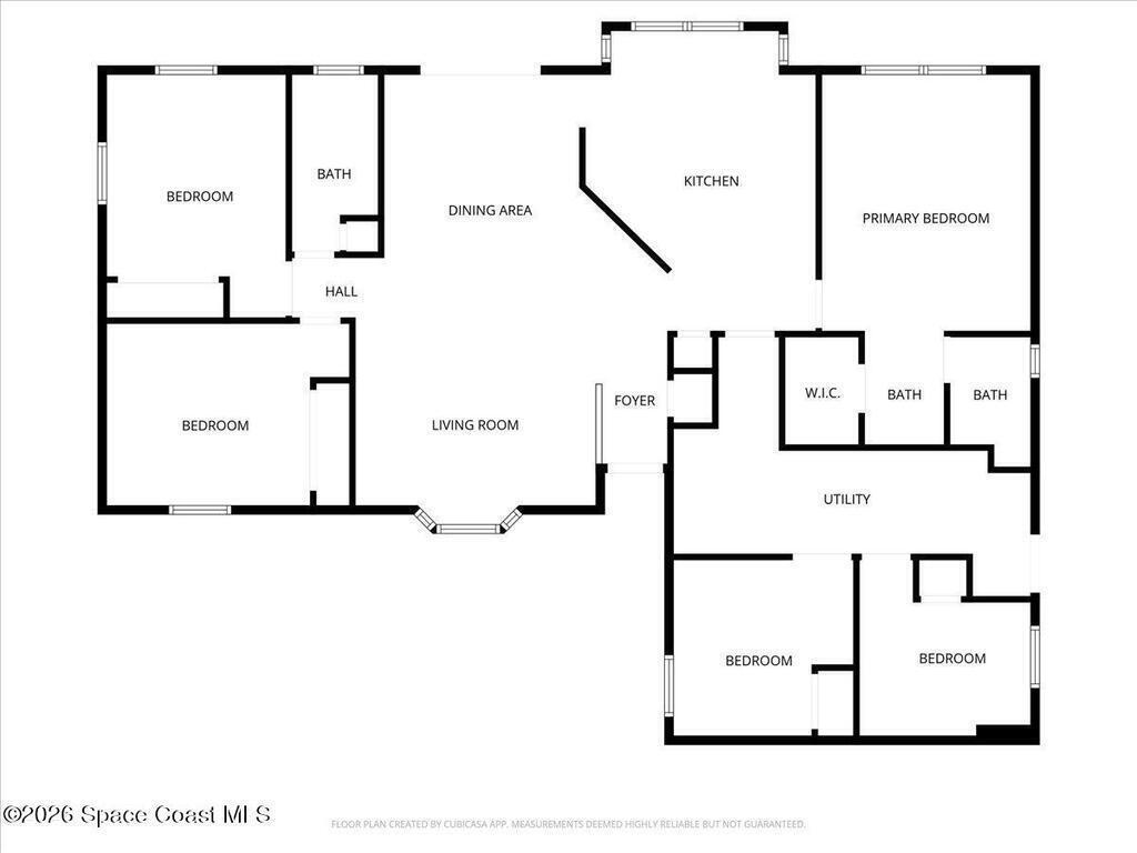
1,759
Square Foot
5
Bedrooms
2.00
Full Baths
N/A
½ Baths
No
Pool
No
Waterfront
1985
Year Built
Property Description:
Situated on a corner lot in Palm Bay, this home offers flexible living space designed to meet today's needs. The garage has been converted to provide additional living area currently used as 2 bedrooms, ideal for a home office or guest rooms all while still allowing front access for storage and the homes water filtration system. The home features 3 bedrooms and 2 baths, a functional layout and fenced yard with a shed and fire pit. The metal roof was installed 2017 with a transferrable warranty. Water heater in 2021, A/C in 2021, Water filter system was upgraded in 2022, and the septic was pumped and inspected in 2026 With its spacious interior, valuable upgrades, and corner-lot location, this home is a great opportunity for buyers seeking space, peace of mind, and versatility.
Exterior Features
Fire Pit
Interior Features:
Breakfast Nook, Ceiling Fan(s), Entrance Foyer, Primary Bathroom - Shower No Tub, Split Bedrooms, Vaulted Ceiling(s)
Equipment / Appliances:
Electric Range, Microwave, Refrigerator
Utilities:
Cable Available, Electricity Connected
Property Details
Street Name:
County:
Brevard
Listing Status:
Active
Floor:
Laminate, Tile, Vinyl
Tax Year:
2025
Pool:
No
Private Pool:
No
Waterfront:
No
Zip Code:
Subdivision:
Port Malabar Unit 19
Construction:
Stucco, Wood Siding
Roof Type:
Metal
Tax Amount:
$2,764
Furnishings:
Unfurnished
Parking:
Off Street
HOA Dues:
$0.00

401 Whealan Street Palm Bay, FL 32908
This listing is courtesy of Blue Marlin Real Estate.
Real Estate and Luxury homes in Melbourne Beach, Merritt Island, Cocoa Beach, Lansing Island, Tortoise Island, Vero Beach, Barefoot Bay, Cape Canaveral, Cocoa, Grant Valkaria, Indialantic, Indian Harbour Beach, Malabar, Melbourne, Palm Bay, Rockledge, Satellite Beach, Titusville, West Melbourne and surrounding areas in Brevard and Central Florida.
Property Listing Data contained within this site is the property of Brevard MLS and is provided for consumers looking to purchase real estate. Any other use is prohibited. We are not responsible for errors and omissions on this web site. All information contained herein should be deemed reliable but not guaranteed, all representations are approximate, and individual verification is recommended.

Share: