Price: $399,982
1092 Canfield CirclePalm Bay, FL 32909
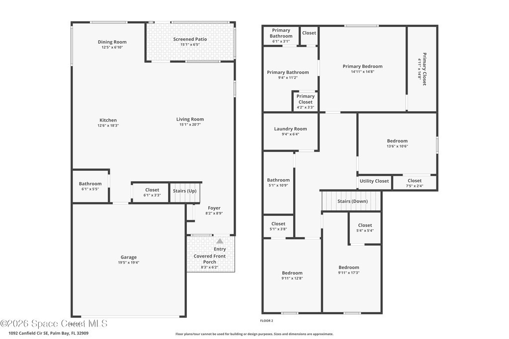
2,202
Square Foot
4
Bedrooms
3.00
Full Baths
1
½ Baths
No
Pool
Yes
Waterfront
2023
Year Built
Property Description:
Lakefront home built in 2023, priced under $400K--and now offering $10, 000 toward buyer closing costs or rate buy-down.Get the benefits of new construction without the wait--and without the added upgrade costs. Situated on a premium lakefront homesite in the Gardens at Waterstone, this two-story residence offers over 2, 100 square feet of thoughtfully designed living space with 4 bedrooms, 2.5 baths, and a spacious loft.The open-concept main level features tile flooring throughout and a seamless flow between the kitchen, dining area, and great room--perfect for everyday living and entertaining. Unlike many new construction homes, this property is already upgraded beyond builder grade, including accordion shutters for 2nd floor, a stylish tile backsplash, upgraded lighting, ceiling fans throughout, and a screened lanai overlooking the peaceful lake--features that often cost buyers thousands after closing.Upstairs, all four bedrooms are thoughtfully positioned along with a centrally
Exterior Features
Storm Shutters
Interior Features:
Breakfast Bar, Ceiling Fan(s), Entrance Foyer, Open Floorplan, Pantry
Equipment / Appliances:
Dishwasher, Disposal, Electric Range, Microwave, Refrigerator
Utilities:
Cable Connected, Electricity Connected, Sewer Connected, Water Connected
Property Details
Street Name:
County:
Brevard
Listing Status:
Active
Home Style:
Traditional
Floor:
Carpet, Tile
Tax Year:
2025
Pool:
No
Private Pool:
No
Waterfront:
Yes
Water Type:
Zip Code:
Subdivision:
GARDENS AT WATERSTONE PHASE 1
Construction:
Block, Concrete, Frame, Stucco, Vinyl Siding
Roof Type:
Shingle
Tax Amount:
$5,787
Furnishings:
Unfurnished
Home View:
Lake, Pond
Parking:
Garage, Garage Door Opener
HOA Dues:
$0.00
Additional Rooms:
Bedroom 2, Bedroom 3, Bedroom 4, Dining Room, Great Room, Other Room, Primary Bedroom

1092 Canfield Circle Palm Bay, FL 32909
This listing is courtesy of Engel&Voelkers Melb Beachside.
Real Estate and Luxury homes in Melbourne Beach, Merritt Island, Cocoa Beach, Lansing Island, Tortoise Island, Vero Beach, Barefoot Bay, Cape Canaveral, Cocoa, Grant Valkaria, Indialantic, Indian Harbour Beach, Malabar, Melbourne, Palm Bay, Rockledge, Satellite Beach, Titusville, West Melbourne and surrounding areas in Brevard and Central Florida.
Property Listing Data contained within this site is the property of Brevard MLS and is provided for consumers looking to purchase real estate. Any other use is prohibited. We are not responsible for errors and omissions on this web site. All information contained herein should be deemed reliable but not guaranteed, all representations are approximate, and individual verification is recommended.

Share: