Price: $845,000
1710 Westport RoadMerritt Island, FL 32952
2,850
Square Foot
4
Bedrooms
3.00
Full Baths
N/A
½ Baths
Yes
Pool
Yes
Waterfront
1989
Year Built
Property Description:
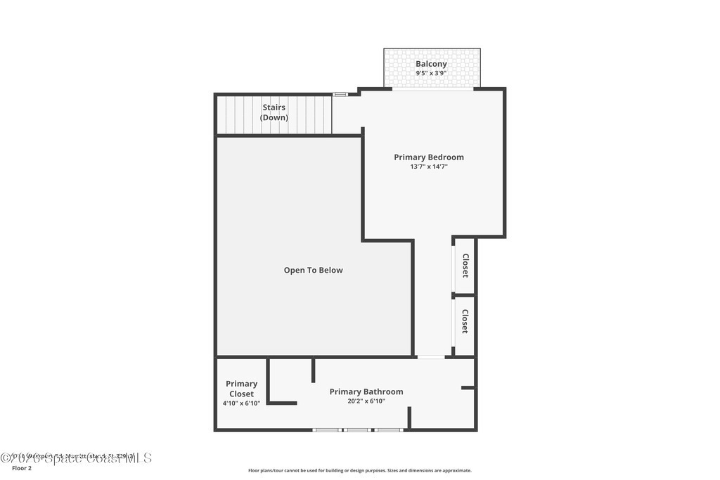
Breathtaking sunrises & long-range water views! Navigable deep water direct to the Banana River w/no bridges. Very low maintenance yard & tropical landscaping. New seawall in 2021. New roof in 2017. Relax pool side under a tiki-roof. Dolphin & manatees play in your backyard - where you'll also see spectacular rocket launches! A perfect home for nature lovers & water enthusiasts w/plenty of room when family comes to visit! 4 bedrooms plus a den/office. This flexible open floor plan offers versatility, tons of natural light, & bright airy spaces! Recently redesigned kitchen w/stainless steel appliances, shaker-style cabinets, soft-close drawers/cabinets, & quartz countertops. Primary loft suite w/private balcony & expansive water views, jetted tub, separate walk-in shower, double sinks & walk-in closet. All hard surface flooring throughout. Brick paver driveway, Bahama shutters. Just minutes to Cocoa Beach, Port Canaveral's cruise terminals, & Kennedy Space Center
Exterior Features
Balcony, Boat Lift, Boat Slip, Dock, Impact Windows
Interior Features:
Breakfast Bar, Ceiling Fan(s), Entrance Foyer, Open Floorplan, Primary Bathroom -Tub with Separate Shower, Split Bedrooms, Vaulted Ceiling(s), Walk-In Closet(s)
Equipment / Appliances:
Dishwasher, Dryer, Gas Cooktop, Gas Water Heater, Refrigerator, Washer
Utilities:
Cable Connected, Electricity Connected, Natural Gas Connected, Sewer Connected, Water Connected
Property Details
Street Name:
County:
Brevard
Listing Status:
Active
Home Style:
Traditional
Floor:
Tile, Wood
Tax Year:
2025
Pool:
Yes
Private Pool:
Yes
Waterfront:
Yes
Water Type:
Pool Description:
In Ground
Zip Code:
Subdivision:
Riviera Isles Sec 4
Construction:
Block, Concrete, Stucco
Roof Type:
Shingle
Tax Amount:
$5,224
Fireplace:
Gas
Furnishings:
Unfurnished
Home View:
Canal, River, Water
Parking:
Garage, Garage Door Opener
HOA Dues:
$0.00

1710 Westport Road Merritt Island, FL 32952
This listing is courtesy of Florida East Coast Real Estate.
Real Estate and Luxury homes in Melbourne Beach, Merritt Island, Cocoa Beach, Lansing Island, Tortoise Island, Vero Beach, Barefoot Bay, Cape Canaveral, Cocoa, Grant Valkaria, Indialantic, Indian Harbour Beach, Malabar, Melbourne, Palm Bay, Rockledge, Satellite Beach, Titusville, West Melbourne and surrounding areas in Brevard and Central Florida.
Property Listing Data contained within this site is the property of Brevard MLS and is provided for consumers looking to purchase real estate. Any other use is prohibited. We are not responsible for errors and omissions on this web site. All information contained herein should be deemed reliable but not guaranteed, all representations are approximate, and individual verification is recommended.

Share: