Price: $398,000
2083 Farmhouse RoadPalm Bay, FL 32909
1,918
Square Foot
4
Bedrooms
3.00
Full Baths
1
½ Baths
No
Pool
No
Waterfront
2023
Year Built
Property Description:
A Rare Find with Premium Upgrades, Exceptional Style & a True Spa RetreatThis enhanced extended-Cali model stands out with thoughtful design, quality finishes, and exceptional outdoor living on a private lake lot. A fully fenced yard, extended paver driveway, and spacious lanai provide ideal space for entertaining and enjoying tranquil water views.Inside, upgrades include a dedicated office with upgraded flooring and a gourmet kitchen with a specialty sink, designer backsplash, and upgraded hardware. The owner's suite is the highlight, featuring a fully renovated spa-style bathroom with a stunning freestanding soaking tub and boutique-level finishes. Additional enhancements include updated lighting, accent walls, modern fixtures, and a newly enclosed secondary shower. With its expanded footprint and standout luxury renovations, this home rises above the competition. Come experience the difference.
Exterior Features
Storm Shutters
Interior Features:
Ceiling Fan(s), Kitchen Island, Open Floorplan, Pantry, Primary Bathroom -Tub with Separate Shower, Smart Thermostat
Equipment / Appliances:
Dishwasher, Disposal, Electric Range, Microwave, Refrigerator
Utilities:
Cable Available, Electricity Connected, Sewer Connected, Water Connected
Property Details
Street Name:
County:
Brevard
Listing Status:
Active
Home Style:
Ranch
Floor:
Laminate, Tile
Tax Year:
2024
Pool:
No
Private Pool:
No
Waterfront:
No
Zip Code:
Subdivision:
Cypress Bay Preserve Phase 2
Construction:
Block, Concrete, Stucco
Roof Type:
Shingle
Tax Amount:
$3,750
Furnishings:
Unfurnished
Home View:
Lake, Pond
Parking:
Garage Door Opener
HOA Dues:
$0.00
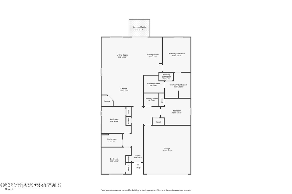
Additional Rooms:
Bedroom 2, Bedroom 3, Bedroom 4, Dining Room, Kitchen, Living Room, Primary Bedroom

2083 Farmhouse Road Palm Bay, FL 32909
This listing is courtesy of Real Broker LLC.
Real Estate and Luxury homes in Melbourne Beach, Merritt Island, Cocoa Beach, Lansing Island, Tortoise Island, Vero Beach, Barefoot Bay, Cape Canaveral, Cocoa, Grant Valkaria, Indialantic, Indian Harbour Beach, Malabar, Melbourne, Palm Bay, Rockledge, Satellite Beach, Titusville, West Melbourne and surrounding areas in Brevard and Central Florida.
Property Listing Data contained within this site is the property of Brevard MLS and is provided for consumers looking to purchase real estate. Any other use is prohibited. We are not responsible for errors and omissions on this web site. All information contained herein should be deemed reliable but not guaranteed, all representations are approximate, and individual verification is recommended.

Share: