Price: $798,000
750 W Whitmire DriveMelbourne, FL 32935
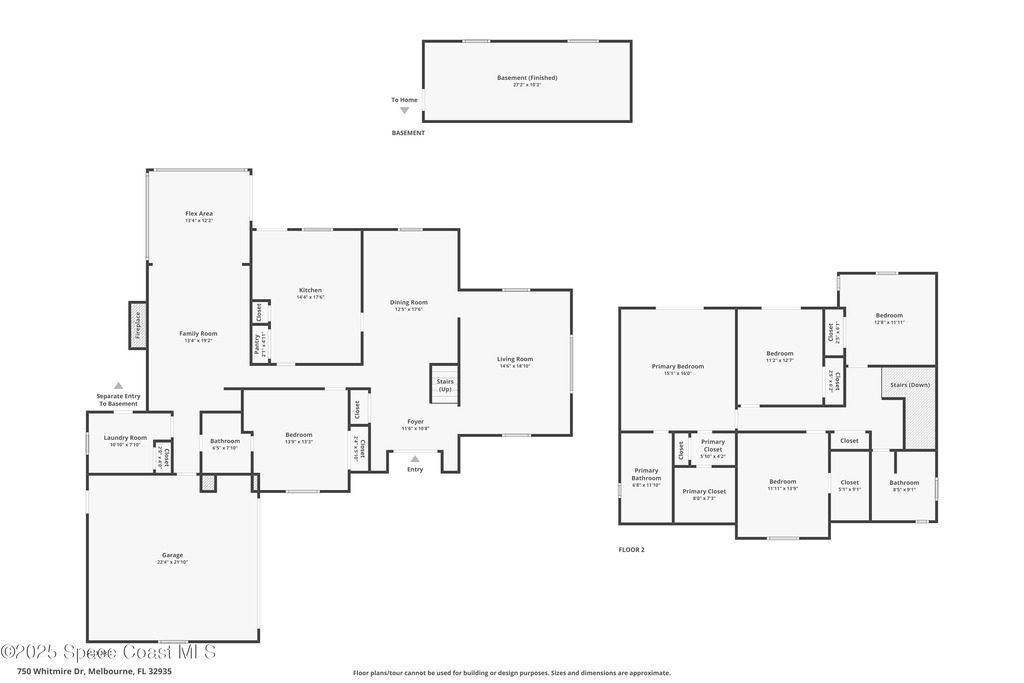
3,086
Square Foot
5
Bedrooms
3.00
Full Baths
N/A
½ Baths
No
Pool
Yes
Waterfront
1980
Year Built
Property Description:
Waterfront | Fresh Exterior Paint | Rare Finished Lower Level! Set along the Eau Gallie River in Historic Ballard Park, this home offers 100' of frontage with direct access to the Indian River Lagoon from your backyard. Inside, enjoy a refreshed layout featuring a clean modern kitchen, updated baths, vinyl flooring on the main level, and a step-down sunken living room designed to showcase the water views.Upstairs, three bedrooms open to a shared riverfront balcony, creating the perfect spot for sunrise coffee and evening breezes. Downstairs, a finished walk-down bonus level adds flexible space for a media room, gym, studio, or playroom - a rare find on the Space Coast.You'll love the oversized 2-car garage, no HOA, and low-maintenance finishes. Boaters and paddlers will appreciate the waterway access with no fixed bridges to the lagoon and potential for a future dock.A short walk to Ballard Park's boat ramp, tennis courts, and riverfront green space, and minutes to the beaches.
Exterior Features
Balcony, Other, Storm Shutters
Interior Features:
Ceiling Fan(s), Eat-in Kitchen, Entrance Foyer, Guest Suite, His and Hers Closets, Jack and Jill Bath, Open Floorplan, Pantry, Primary Bathroom - Tub with Shower, Split Bedrooms, Walk-In Closet(s), Wet Bar
Equipment / Appliances:
Dishwasher, Disposal, Electric Range, Electric Water Heater, Ice Maker, Microwave, Other, Plumbed For Ice Maker, Refrigerator
Utilities:
Electricity Connected, Sewer Connected, Water Connected
Property Details
Street Name:
County:
Brevard
Listing Status:
Active
Home Style:
Traditional
Pool:
No
Private Pool:
No
Waterfront:
Yes
Water Type:
Zip Code:
Subdivision:
Loveridge Heights Subd
Construction:
Block, Concrete, Stucco
Roof Type:
Shingle
Tax Amount:
$0
Fireplace:
Wood Burning
Furnishings:
Unfurnished
Home View:
Canal, Intracoastal, Marina, River, Trees/Woods, Water
Parking:
Circular Driveway, Garage, Garage Door Opener, Guest, Off Street, On Street, RV Access/Parking
HOA Dues:
$0.00

750 W Whitmire Drive Melbourne, FL 32935
This listing is courtesy of Blue Marlin Real Estate.
Real Estate and Luxury homes in Melbourne Beach, Merritt Island, Cocoa Beach, Lansing Island, Tortoise Island, Vero Beach, Barefoot Bay, Cape Canaveral, Cocoa, Grant Valkaria, Indialantic, Indian Harbour Beach, Malabar, Melbourne, Palm Bay, Rockledge, Satellite Beach, Titusville, West Melbourne and surrounding areas in Brevard and Central Florida.
Property Listing Data contained within this site is the property of Brevard MLS and is provided for consumers looking to purchase real estate. Any other use is prohibited. We are not responsible for errors and omissions on this web site. All information contained herein should be deemed reliable but not guaranteed, all representations are approximate, and individual verification is recommended.

Share: