Price: $427,900
3904 Saint Armens CircleMelbourne, FL 32934
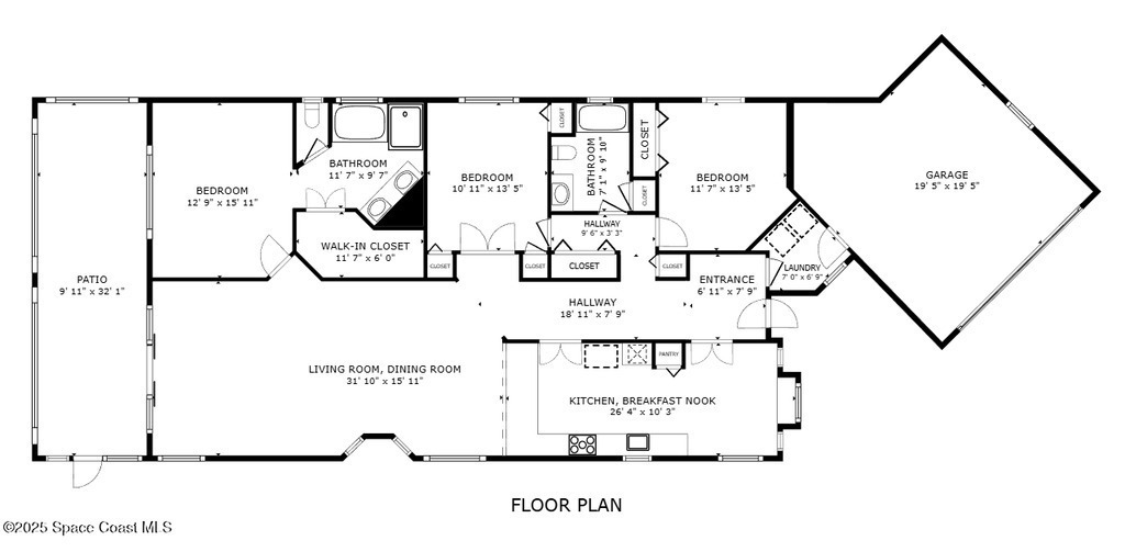
2,006
Square Foot
3
Bedrooms
2.00
Full Baths
N/A
½ Baths
No
Pool
No
Waterfront
1998
Year Built
Property Description:
This beautiful house has it all, 3 bedrooms 2 baths and a 2 car garage one story home with a tons of upgrades. This home has solar panels for the electric, fully installed and paid for over a 30K dollar upgrade. Open floor plan with newer floors, updated custom kitchen that was remodeled to open to the dining room with iron gates to set the kitchen design as one of a kind. Privacy fence in the back yard and pavers on the driveway, custom shelves in the garage for more storage. Seller recently added enclosed porch which adds tons of space to the square footage under roof. A generator that will run the home if ever needed. Well maintained and other custom features.The association has tennis courts and a pool for cooling off during the hot summer. Location location, walking distance to the King Center and Publix shopping center. Do not miss out on this beauty.
Exterior Features
Storm Shutters
Interior Features:
Breakfast Bar, Breakfast Nook, Built-in Features, Ceiling Fan(s), Eat-in Kitchen, Pantry, Primary Bathroom - Tub with Shower, Split Bedrooms, Vaulted Ceiling(s), Walk-In Closet(s)
Equipment / Appliances:
Dishwasher, Disposal, Gas Cooktop, Gas Water Heater, Microwave, Refrigerator
Utilities:
Cable Available, Electricity Available, Natural Gas Connected, Sewer Connected, Water Available, Water Connected
Property Details
Street Name:
County:
Brevard
Listing Status:
Active
Home Style:
Ranch, Traditional
Floor:
Tile, Vinyl
Tax Year:
2023
Pool:
No
Private Pool:
No
Waterfront:
No
Zip Code:
Subdivision:
East Bay Plantation Phase 1 Replat
Construction:
Block, Concrete, Stucco
Roof Type:
Shingle
Tax Amount:
$2,704
Furnishings:
Furnished
Home View:
Other
Parking:
Attached, Garage
HOA Dues:
$0.00

3904 Saint Armens Circle Melbourne, FL 32934
This listing is courtesy of All Real Estate, Inc..
Real Estate and Luxury homes in Melbourne Beach, Merritt Island, Cocoa Beach, Lansing Island, Tortoise Island, Vero Beach, Barefoot Bay, Cape Canaveral, Cocoa, Grant Valkaria, Indialantic, Indian Harbour Beach, Malabar, Melbourne, Palm Bay, Rockledge, Satellite Beach, Titusville, West Melbourne and surrounding areas in Brevard and Central Florida.
Property Listing Data contained within this site is the property of Brevard MLS and is provided for consumers looking to purchase real estate. Any other use is prohibited. We are not responsible for errors and omissions on this web site. All information contained herein should be deemed reliable but not guaranteed, all representations are approximate, and individual verification is recommended.

Share: