Rental Price: $3,500
140 Warsteiner WayMelbourne Beach, FL 32951
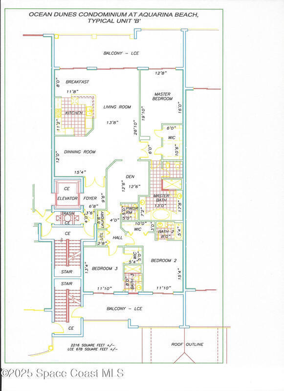
2,216
Square Foot
3
Bedrooms
4.00
Full Baths
1
½ Baths
No
Pool
No
Waterfront
2007
Year Built
Property Description:
Available now - UNFURNISHED for annual lease. OCEAN DUNES' MOST DESIRABLE ''02'' FLOORPLAN at an incredibly low price. This exceptional 3rd floor 3 bedroom/3.5 bath luxury condominium features over 2200 sf of living space w private elevator, high ceilings & 2 spacious PRIVATE balconies w ocean & golf course views. The open floorplan offers an ocean view living room, beautiful kitchen w light wood cabinetry, granite counters & stainless appliances, breakfast nook, formal dining room, 3 ensuite bedrooms plus an extra den or office! OWNER WILL CONSIDER PETS - DOGS maximum 25 lbs. Ocean Dunes features elegant secure lobbies AND TENANT HAS ACCESS TO a gorgeous, HEATED SWIMMING POOL w sundeck, resident grill & firepit, UNDER BUILDING PARKING and ample open parking. Enjoy the dream Florida lifestyle in Aquarina Beach & CC, a gated ocean-to-river community w OCEANFRONT CLUBHOUSE, River Pier, FITNESS, Bar and Grille & more! Aquarina golf and tennis memberships also available.
Exterior Features
Balcony, Storm Shutters
Interior Features:
Breakfast Nook, Built-in Features, Ceiling Fan(s), Elevator, Open Floorplan, Primary Bathroom -Tub with Separate Shower, Primary Downstairs, Split Bedrooms, Walk-In Closet(s)
Equipment / Appliances:
Dishwasher, Dryer, Electric Range, Microwave, Refrigerator, Washer
Utilities:
N/A
Property Details
Street Name:
County:
Brevard
Listing Status:
Active
Pool:
No
Private Pool:
No
Waterfront:
No
Zip Code:
Subdivision:
Ocean Dunes Condominium at Aquarina Beach Ph I
Tax Amount:
$0
Furnishings:
Unfurnished
Home View:
Beach, Golf Course, Trees/Woods
HOA Dues:
$0.00

140 Warsteiner Way Melbourne Beach, FL 32951
This listing is courtesy of Dale Sorensen Real Estate Inc..
Real Estate and Luxury homes in Melbourne Beach, Merritt Island, Cocoa Beach, Lansing Island, Tortoise Island, Vero Beach, Barefoot Bay, Cape Canaveral, Cocoa, Grant Valkaria, Indialantic, Indian Harbour Beach, Malabar, Melbourne, Palm Bay, Rockledge, Satellite Beach, Titusville, West Melbourne and surrounding areas in Brevard and Central Florida.
Property Listing Data contained within this site is the property of Brevard MLS and is provided for consumers looking to purchase real estate. Any other use is prohibited. We are not responsible for errors and omissions on this web site. All information contained herein should be deemed reliable but not guaranteed, all representations are approximate, and individual verification is recommended.

Share: