Price: $1,300,000
337 S Point CourtSatellite Beach, FL 32937
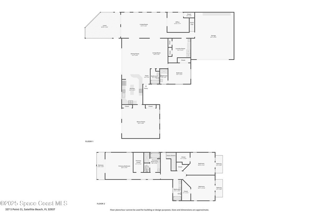
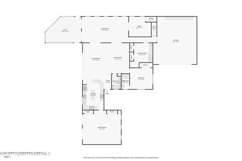
3,945
Square Foot
4
Bedrooms
4.00
Full Baths
N/A
½ Baths
Yes
Pool
Yes
Waterfront
1961
Year Built
Property Description:
Along 100 ft of shimmering shoreline, this waterfront retreat rises above expectations with a saltwater infinity pool that seems to dissolve into Lake Shepherd, deep-water approach from 6-8 ft to 20 ft at the center, & a full suite of boating luxuries including a 24K-lb lift, floating dock, & Trex decking positioned for perfect views of the boat parade. Mornings unfold on an east-facing screened patio framed by pavers & soft sunrise light, while polished travertine in a French pattern & warm hardwood floors carry indoors through a layout designed for connection. The kitchen delivers granite surfaces, double electric oven, island, convection microwave, warming drawer, & breakfast bar opening to a family room lined with water views, & the primary suite adds a jetted tub, walk-in shower, & spacious walk-in closet. Elevated living continues upstairs with a loft & office served by a private elevator & Juliet balcony capturing Grand Canal sunsets.
Exterior Features
Balcony, Boat Lift, Dock, Outdoor Shower, Storm Shutters
Interior Features:
Breakfast Bar, Built-in Features, Ceiling Fan(s), Elevator, Entrance Foyer, Guest Suite, Kitchen Island, Open Floorplan, Primary Bathroom -Tub with Separate Shower, Smart Thermostat, Vaulted Ceiling(s), Walk-In Closet(s)
Equipment / Appliances:
Dishwasher, Disposal, Double Oven, Electric Oven, Electric Water Heater, Gas Cooktop, Microwave, Refrigerator, Water Softener Owned
Utilities:
Electricity Available, Electricity Connected, Natural Gas Connected, Sewer Available, Water Available
Property Details
Street Name:
County:
Brevard
Listing Status:
Active
Home Style:
Spanish
Floor:
Carpet, Tile, Wood
Tax Year:
2025
Pool:
Yes
Private Pool:
Yes
Waterfront:
Yes
Water Type:
Pool Description:
In Ground, Salt Water
Zip Code:
Subdivision:
Waterway Estates Replat
Construction:
Concrete, Frame, Stucco
Tax Amount:
$0
Furnishings:
Unfurnished
Home View:
Canal, Intracoastal, Pool, Water
Parking:
Attached, Garage, Garage Door Opener, RV Access/Parking
HOA Dues:
$0.00

337 S Point Court Satellite Beach, FL 32937
This listing is courtesy of Compass Florida, LLC.
Real Estate and Luxury homes in Melbourne Beach, Merritt Island, Cocoa Beach, Lansing Island, Tortoise Island, Vero Beach, Barefoot Bay, Cape Canaveral, Cocoa, Grant Valkaria, Indialantic, Indian Harbour Beach, Malabar, Melbourne, Palm Bay, Rockledge, Satellite Beach, Titusville, West Melbourne and surrounding areas in Brevard and Central Florida.
Property Listing Data contained within this site is the property of Brevard MLS and is provided for consumers looking to purchase real estate. Any other use is prohibited. We are not responsible for errors and omissions on this web site. All information contained herein should be deemed reliable but not guaranteed, all representations are approximate, and individual verification is recommended.

Share: