Price: $858,000
4034 Waterloo PlaceMelbourne, FL 32940
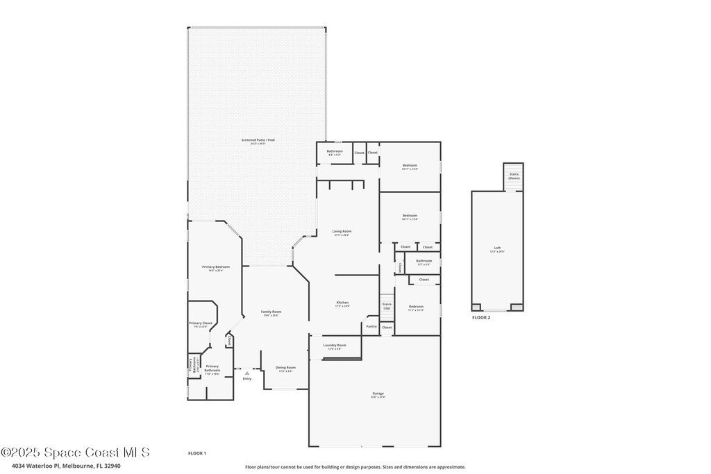
3,048
Square Foot
4
Bedrooms
3.00
Full Baths
N/A
½ Baths
Yes
Pool
Yes
Waterfront
2006
Year Built
Property Description:
In a community of Million-dollar homes, this is a rare opportunity to own THE DREAM WATERFRONT HOME in the prestigious gated community of Brisbane Isle of Suntree for the LOWEST PRICE PER SQ FT! Custom-built with over 3, 000 sq ft of lakefront living & the broadest water view in the neighborhood. Exceptional outdoor living with gorgeous screened-in solar-heated pool & spa. Relax while you enjoy stunning nightly sunsets. Home boasts all the essential features for the discerning homebuyer: Concrete block construction, barrel tile roof, impact-rated windows and power-assisted roll down shutters, 3 Car garage and expansive bonus room ideal for guests, playroom, gym, or office. Beautiful kitchen showcases stainless steel appliances, granite countertops, stone backsplash, bar seating & island for food prep or entertaining. Primary suite overlooking the pool, features large walk-in closet, spa-like bath with shower & separate soaking tub, double sinks & private water closet.
Exterior Features
Impact Windows, Storm Shutters
Interior Features:
Built-in Features, Ceiling Fan(s), Eat-in Kitchen, Entrance Foyer, His and Hers Closets, In-Law Floorplan, Kitchen Island, Open Floorplan, Pantry, Primary Bathroom -Tub with Separate Shower, Primary Downstairs, Split Bedrooms, Vaulted Ceiling(s), Walk-In Closet(s)
Equipment / Appliances:
Dishwasher, Disposal, Electric Oven, Electric Range, Microwave, Refrigerator
Utilities:
Electricity Connected, Sewer Connected
Property Details
Street Name:
County:
Brevard
Listing Status:
Active
Home Style:
Contemporary
Floor:
Carpet, Tile, Wood
Tax Year:
2025
Pool:
Yes
Private Pool:
Yes
Waterfront:
Yes
Water Type:
Pool Description:
Heated, In Ground, Pool Sweep, Screen Enclosure, Solar Heat
Zip Code:
Subdivision:
Brisbane Isle Phase 1
Construction:
Concrete, Stucco
Roof Type:
Tile
Tax Amount:
$5,322
Furnishings:
Unfurnished
Home View:
Lake
Parking:
Attached
HOA Dues:
$0.00

4034 Waterloo Place Melbourne, FL 32940
This listing is courtesy of RE/MAX Alternative Realty.
Real Estate and Luxury homes in Melbourne Beach, Merritt Island, Cocoa Beach, Lansing Island, Tortoise Island, Vero Beach, Barefoot Bay, Cape Canaveral, Cocoa, Grant Valkaria, Indialantic, Indian Harbour Beach, Malabar, Melbourne, Palm Bay, Rockledge, Satellite Beach, Titusville, West Melbourne and surrounding areas in Brevard and Central Florida.
Property Listing Data contained within this site is the property of Brevard MLS and is provided for consumers looking to purchase real estate. Any other use is prohibited. We are not responsible for errors and omissions on this web site. All information contained herein should be deemed reliable but not guaranteed, all representations are approximate, and individual verification is recommended.

Share: