Price: $225,000
1005 Ashley AvenueIndian Harbour Beach, FL 32937
1,167
Square Foot
2
Bedrooms
3.00
Full Baths
1
½ Baths
No
Pool
No
Waterfront
1978
Year Built
Property Description:
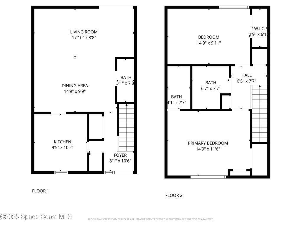
This spacious 2-bedroom, 2.5-bath townhouse offers an incredible opportunity to create your dream coastal retreat. Perfectly situated just a short distance from the beach, this home combines a sought-after location with the chance to add your own personal touch and value through updates and repairs.The main level features an open living and dining area, a convenient half bath, and access to a private patio--ideal for enjoying ocean breezes or outdoor dining. Upstairs, you'll find two generously sized bedrooms, including a primary suite with its own private bathroom. The second full bath, located in the hallway, serves the additional bedroom or guests with ease.While this townhouse is ready for some renovation, its strong layout, great bones, and unbeatable location make it a fantastic investment or second-home opportunity. Whether you're looking to modernize it for personal use or update it for rental income, this property holds exceptional potential.
Exterior Features
N/A
Interior Features:
Ceiling Fan(s)
Equipment / Appliances:
Electric Oven, Refrigerator
Utilities:
Electricity Connected, Sewer Connected, Water Connected
Property Details
Street Name:
County:
Brevard
Listing Status:
Active
Floor:
Tile
Tax Year:
2025
Pool:
No
Private Pool:
No
Waterfront:
No
Zip Code:
Subdivision:
Burns Village Partial Replat
Construction:
Block, Stucco
Roof Type:
Membrane
Tax Amount:
$3,593
Furnishings:
Unfurnished
Parking:
Other
HOA Dues:
$0.00
Additional Rooms:
Bathroom 2, Bedroom 2, Dining Room, Kitchen, Living Room, Primary Bathroom, Primary Bedroom

1005 Ashley Avenue Indian Harbour Beach, FL 32937
This listing is courtesy of Lokation Real Estate.
Real Estate and Luxury homes in Melbourne Beach, Merritt Island, Cocoa Beach, Lansing Island, Tortoise Island, Vero Beach, Barefoot Bay, Cape Canaveral, Cocoa, Grant Valkaria, Indialantic, Indian Harbour Beach, Malabar, Melbourne, Palm Bay, Rockledge, Satellite Beach, Titusville, West Melbourne and surrounding areas in Brevard and Central Florida.
Property Listing Data contained within this site is the property of Brevard MLS and is provided for consumers looking to purchase real estate. Any other use is prohibited. We are not responsible for errors and omissions on this web site. All information contained herein should be deemed reliable but not guaranteed, all representations are approximate, and individual verification is recommended.

Share: