Price: $319,000
3901 Dixie HighwayPalm Bay, FL 32905
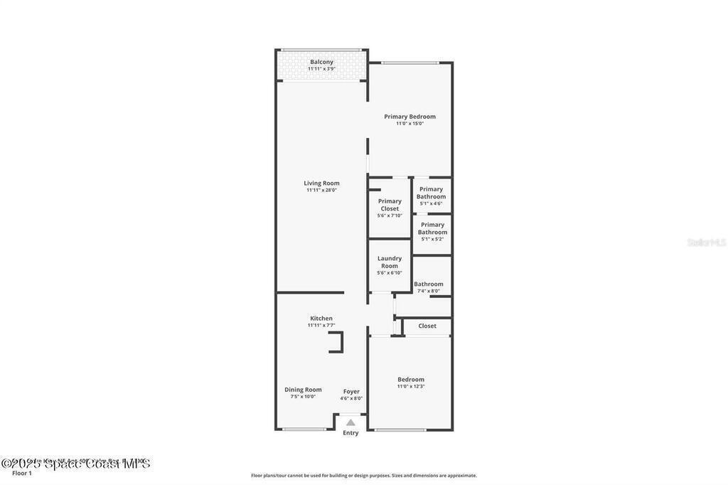
1,146
Square Foot
2
Bedrooms
2.00
Full Baths
N/A
½ Baths
No
Pool
Yes
Waterfront
1985
Year Built
Property Description:
Welcome to your dream retreat on the Indian River in Palm Bay! This COMPLETELY renovated condo showcases elegant coastal style with gold fixtures throughout, custom wood features, a wine cooler, brand-new kitchen, and new carpet in the bedrooms. Situated on the 4th floor of Castaway Cove, you'll enjoy stunning sunrises, refreshing breezes, and the serenity of watching dolphins and manatees play from your private balcony. In the evenings, relax and watch rocket launches illuminate the sky--all from the comfort of home. The community offers riverside pool access, a dock, covered parking, and a secure lobby for peace of mind. The HOA covers exterior maintenance, cable, water, sewer, garbage, pest control, groundskeeping, and insurance, ensuring a true maintenance-free lifestyle. Luxury, comfort, and nature come together seamlessly in this beautiful waterfront condo. (Note: No short-term rentals permitted.)
Exterior Features
Balcony, Storm Shutters
Interior Features:
N/A
Equipment / Appliances:
Dishwasher, Electric Water Heater, Microwave, Refrigerator
Utilities:
Electricity Connected
Property Details
Street Name:
County:
Brevard
Listing Status:
Active
Floor:
Carpet, Tile, Vinyl
Tax Year:
2024
Pool:
No
Private Pool:
No
Waterfront:
Yes
Water Type:
Zip Code:
Subdivision:
The Castaway Cove Condo
Construction:
Block, Concrete
Roof Type:
Other
Tax Amount:
$4,114
Furnishings:
Unfurnished
Home View:
Intracoastal, River
Parking:
Assigned, Carport
HOA Dues:
$0.00
Additional Rooms:
Bedroom 2, Dining Room, Kitchen, Laundry, Living Room, Primary Bedroom

3901 Dixie Highway Palm Bay, FL 32905
This listing is courtesy of Iron Valley R.E.Osceola.
Real Estate and Luxury homes in Melbourne Beach, Merritt Island, Cocoa Beach, Lansing Island, Tortoise Island, Vero Beach, Barefoot Bay, Cape Canaveral, Cocoa, Grant Valkaria, Indialantic, Indian Harbour Beach, Malabar, Melbourne, Palm Bay, Rockledge, Satellite Beach, Titusville, West Melbourne and surrounding areas in Brevard and Central Florida.
Property Listing Data contained within this site is the property of Brevard MLS and is provided for consumers looking to purchase real estate. Any other use is prohibited. We are not responsible for errors and omissions on this web site. All information contained herein should be deemed reliable but not guaranteed, all representations are approximate, and individual verification is recommended.

Share: