Price: $220,000
1331 Barefoot CircleBarefoot Bay, FL 32976
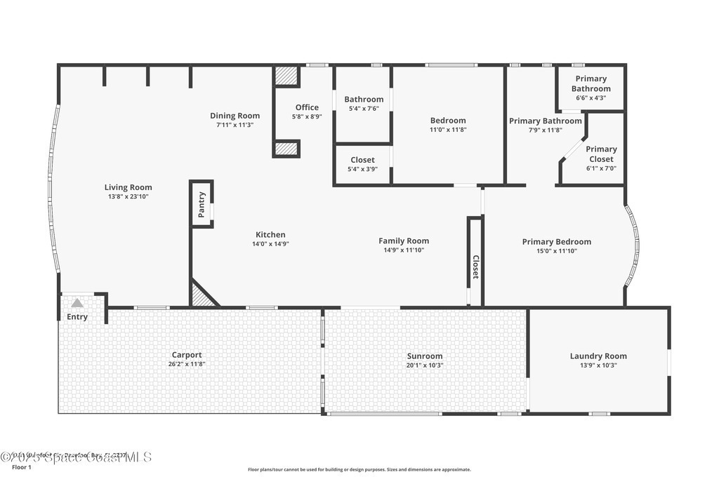
1,361
Square Foot
2
Bedrooms
2.00
Full Baths
N/A
½ Baths
No
Pool
No
Waterfront
1989
Year Built
Property Description:
One of the best lot locations in Barefoot Bay featuring a 2024 roof and new strapping! This spacious layout includes a formal office, wet bar, and dining room, perfect for entertaining. Enjoy luxury vinyl and tile flooring throughout, a walk-in closet, and his-and-her sinks in the primary suite. Step outside to a private fenced backyard with no rear neighbors, backing to a peaceful green area. Relax in the hot tub, unwind on the raised deck, or pick from your fruit-bearing garden with papaya, yam, acke, soursop, and banana. Added features include a carport with extra paved parking, a new window unit on the porch, and a transferrable solar contract that keeps electric costs low. Located in desirable Barefoot Bay, a golf cart-friendly community offering 3 pools, a golf course, clubhouse, restaurants, fishing pier, and more. Financeable property--ready for its new owner!
Exterior Features
N/A
Interior Features:
Eat-in Kitchen, Kitchen Island, Walk-In Closet(s), Wet Bar
Equipment / Appliances:
Dryer, Electric Oven, Electric Range, Microwave, Refrigerator, Washer
Utilities:
Cable Available, Electricity Connected, Sewer Connected, Water Connected
Property Details
Street Name:
County:
Brevard
Listing Status:
Active
Floor:
Tile, Vinyl
Tax Year:
2024
Pool:
No
Private Pool:
No
Waterfront:
No
Zip Code:
Subdivision:
Barefoot Bay Unit 2 Part 10 Replat of Park Areas
Construction:
Vinyl Siding
Tax Amount:
$0
Furnishings:
Negotiable
Home View:
Trees/Woods
Parking:
Additional Parking, Carport
HOA Dues:
$0.00

1331 Barefoot Circle Barefoot Bay, FL 32976
This listing is courtesy of One Sotheby's International.
Real Estate and Luxury homes in Melbourne Beach, Merritt Island, Cocoa Beach, Lansing Island, Tortoise Island, Vero Beach, Barefoot Bay, Cape Canaveral, Cocoa, Grant Valkaria, Indialantic, Indian Harbour Beach, Malabar, Melbourne, Palm Bay, Rockledge, Satellite Beach, Titusville, West Melbourne and surrounding areas in Brevard and Central Florida.
Property Listing Data contained within this site is the property of Brevard MLS and is provided for consumers looking to purchase real estate. Any other use is prohibited. We are not responsible for errors and omissions on this web site. All information contained herein should be deemed reliable but not guaranteed, all representations are approximate, and individual verification is recommended.

Share: