Price: $565,000
2688 Trails At Hidden HbrMerritt Island, FL 32952
1,968
Square Foot
3
Bedrooms
3.00
Full Baths
N/A
½ Baths
Yes
Pool
No
Waterfront
2002
Year Built
Property Description:
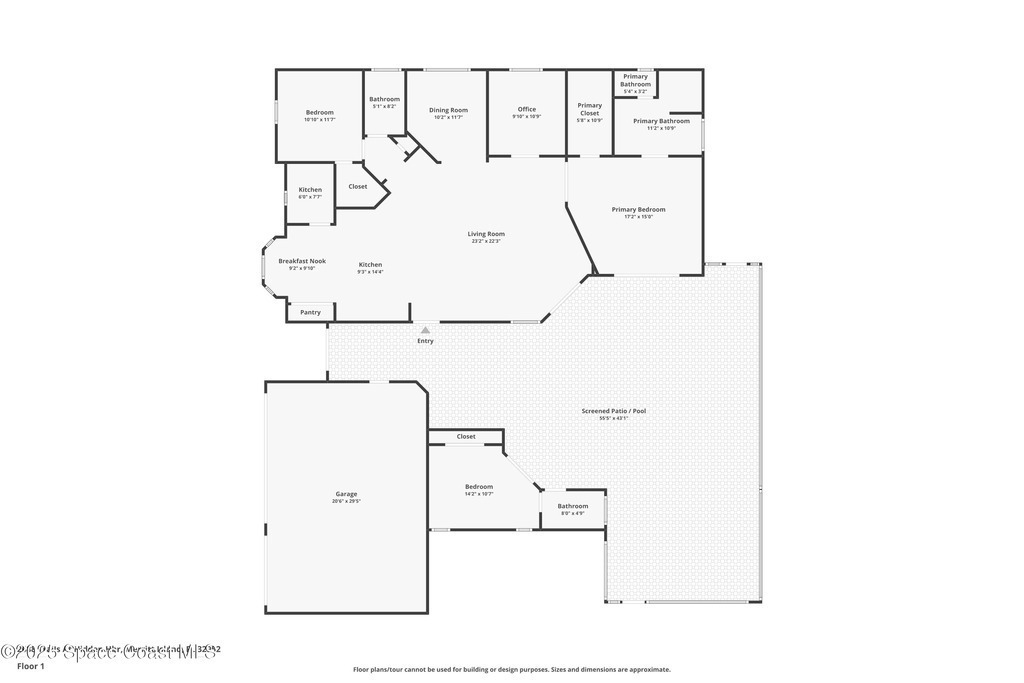
72 HOUR KICK OUT IN PLACE - Welcome to River Grove, one of South Merritt Island's premier executive communities featuring a private community dock for fishing, kayaking, or sunset views on the Indian River. This 3-bedroom, 3-bath home offers an inviting pool view the moment you step inside, creating the perfect Florida lifestyle. The open layout is bright and spacious, complemented by a private in-law suite ideal for multi-generational living or guests. Recent upgrades include a brand-new 2025 A/C unit, new microwave, and new dishwasher. Enjoy outdoor living at its best with a screened pool area and lush tropical surroundings. Pride of ownership shines throughout this beautifully maintained home in one of South Merritt Island's most sought-after neighborhoods.
Exterior Features
N/A
Interior Features:
Breakfast Bar, Breakfast Nook, Ceiling Fan(s), Guest Suite, In-Law Floorplan, Kitchen Island, Open Floorplan, Pantry, Primary Bathroom -Tub with Separate Shower, Primary Downstairs, Split Bedrooms, Walk-In Closet(s)
Equipment / Appliances:
Disposal, Electric Range, Electric Water Heater, ENERGY STAR Qualified Dishwasher, Ice Maker, Microwave, Refrigerator
Utilities:
Cable Available, Electricity Connected, Water Connected
Property Details
Street Name:
County:
Brevard
Listing Status:
Active
Floor:
Carpet, Tile
Tax Year:
2023
Pool:
Yes
Private Pool:
Yes
Waterfront:
No
Pool Description:
In Ground, Screen Enclosure
Zip Code:
Subdivision:
River Grove On The Trail Phase 1
Construction:
Concrete, Stucco
Tax Amount:
$6,066
Furnishings:
Unfurnished
Home View:
Pool, Trees/Woods
Parking:
Attached, Garage
HOA Dues:
$0.00

2688 Trails At Hidden Hbr Merritt Island, FL 32952
This listing is courtesy of Compass Florida, LLC.
Real Estate and Luxury homes in Melbourne Beach, Merritt Island, Cocoa Beach, Lansing Island, Tortoise Island, Vero Beach, Barefoot Bay, Cape Canaveral, Cocoa, Grant Valkaria, Indialantic, Indian Harbour Beach, Malabar, Melbourne, Palm Bay, Rockledge, Satellite Beach, Titusville, West Melbourne and surrounding areas in Brevard and Central Florida.
Property Listing Data contained within this site is the property of Brevard MLS and is provided for consumers looking to purchase real estate. Any other use is prohibited. We are not responsible for errors and omissions on this web site. All information contained herein should be deemed reliable but not guaranteed, all representations are approximate, and individual verification is recommended.

Share: