Price: $4,750
2100 N Wickham RoadMelbourne, FL 32935
0
Square Foot
9,212
Total Sq. Ft.
N/A
Bedrooms
1.00
Full Baths
N/A
½ Baths
No
Waterfront
1976
Year Built
Property Description:
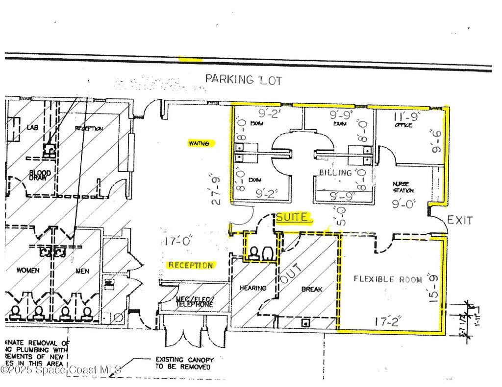
Approximately +/- 1900 sq. ft. medical office suite in Doccs Urgent Care. A separate wing that includes 3 exam rooms, billing station, nurse's station, Doctor's office, a 15'x17' flexible use room, restroom and private exit. Shared waiting and reception area and a large shared parking lot. Water and electric is included. Internet and phone service by tenant. Minimum 2 year lease, options for additional years negotiable. First month and last month plus $5, 000 security deposit required. See attached floor plan.
Exterior Features
N/A
Interior Features:
N/A
Equipment / Appliances:
N/A
Utilities:
N/A
Property Details
Street Name:
County:
Brevard
Listing Status:
Active
Tax Year:
2023
Waterfront:
No
Zip Code:
Subdivision:
Indian River Groves and Gardens
Tax Amount:
$0
HOA Dues:
$0.00

2100 N Wickham Road Melbourne, FL 32935
This listing is courtesy of Rahal Real Estate LLC.
Real Estate and Luxury homes in Melbourne Beach, Merritt Island, Cocoa Beach, Lansing Island, Tortoise Island, Vero Beach, Barefoot Bay, Cape Canaveral, Cocoa, Grant Valkaria, Indialantic, Indian Harbour Beach, Malabar, Melbourne, Palm Bay, Rockledge, Satellite Beach, Titusville, West Melbourne and surrounding areas in Brevard and Central Florida.
Property Listing Data contained within this site is the property of Brevard MLS and is provided for consumers looking to purchase real estate. Any other use is prohibited. We are not responsible for errors and omissions on this web site. All information contained herein should be deemed reliable but not guaranteed, all representations are approximate, and individual verification is recommended.

Share: