Price: $2,575,000
327 Lansing Island DriveIndian Harbour Beach, FL 32937
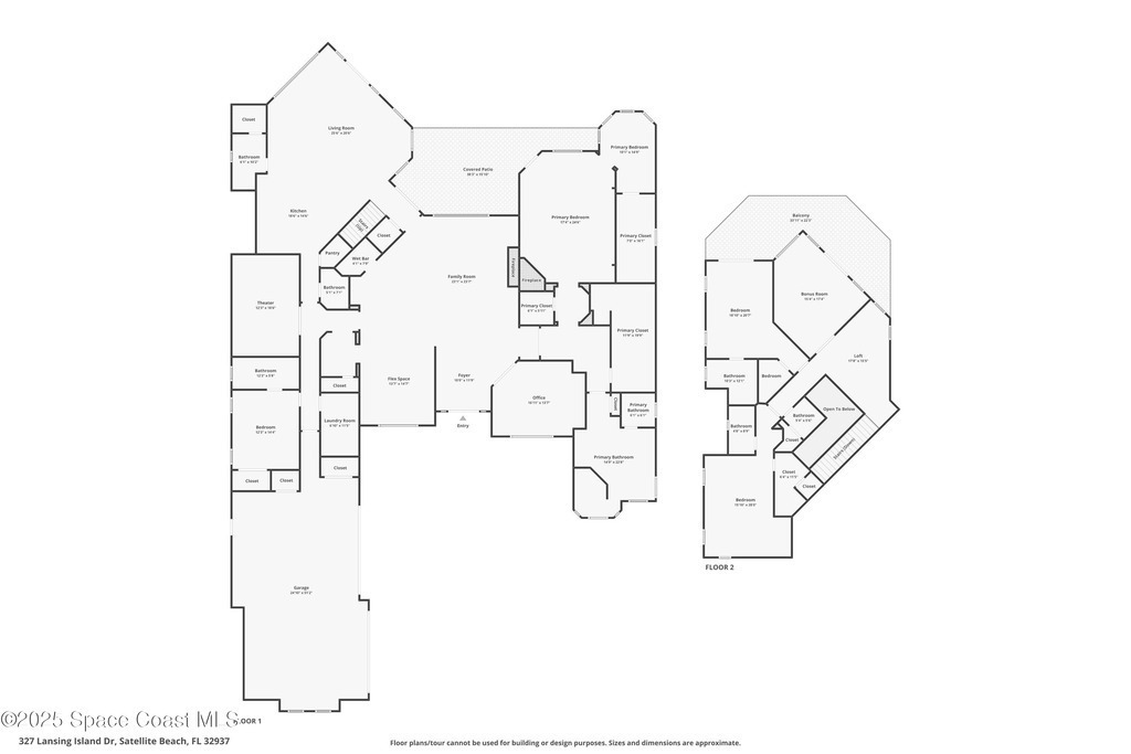
5,998
Square Foot
4
Bedrooms
7.00
Full Baths
2
½ Baths
Yes
Pool
Yes
Waterfront
2003
Year Built
Property Description:
This rare Lansing Island estate defines waterfront luxury w/ nearly 6, 000 sq ft on over 1/2 acre along the Banana River. Behind the gates of this exclusive enclave, craftsmanship reigns supreme w/ marble & wood floors, travertine, coral stone castings & solid-core doors. Designed for entertaining & retreat, the home offers 4 BD, 5 full & 2 half BA, multiple gas FP, a soaring vaulted foyer & a sweeping floor plan flowing from a formal LR w/ river views to a dining hall w/ full bar & pool table. The chef's kitchen boasts river vistas, granite, Thermador gas island stove, butler's pantry & morning kitchen w/ pool access, while a state-of-the-art theater enhances nights in. The primary suite is a sanctuary w/ sitting rm, FP, wet bar, dual closets & spa bath w/ jetted tub, walk-in showers & coffered ceilings. Upstairs features a loft, bonus rm & guest suites w/ balconies. Outdoors, enjoy your private pool, cascading spa, lanai & summer kitchen all overlooking the river.
Exterior Features
Balcony, Boat Lift, Dock, Impact Windows, Outdoor Kitchen
Interior Features:
Breakfast Bar, Built-in Features, Butler Pantry, Ceiling Fan(s), Central Vacuum, Entrance Foyer, Guest Suite, His and Hers Closets, Kitchen Island, Open Floorplan, Primary Bathroom -Tub with Separate Shower, Primary Downstairs, Smart Thermostat, Split Bedrooms, Vaulted Ceiling(s), Walk-In Closet(s), Wet Bar, Wine Cellar
Equipment / Appliances:
Dishwasher, Disposal, Dryer, Freezer, Gas Cooktop, Gas Oven, Gas Water Heater, Ice Maker, Microwave, Refrigerator, Trash Compactor, Washer, Wine Cooler
Utilities:
Electricity Connected, Natural Gas Connected, Sewer Connected, Water Connected
Property Details
Street Name:
County:
Brevard
Listing Status:
Active
Floor:
Carpet, Marble, Wood
Tax Year:
2023
Pool:
Yes
Private Pool:
Yes
Waterfront:
Yes
Water Type:
Pool Description:
In Ground, Waterfall
Zip Code:
Subdivision:
Lansing Island Phase 5
Construction:
Block, Concrete, Stucco
Tax Amount:
$25,764
Fireplace:
Gas
Furnishings:
Unfurnished
Home View:
Pool, River, Water
Parking:
Attached, Garage, Garage Door Opener
HOA Dues:
$0.00

327 Lansing Island Drive Indian Harbour Beach, FL 32937
This listing is courtesy of Compass Florida, LLC.
Real Estate and Luxury homes in Melbourne Beach, Merritt Island, Cocoa Beach, Lansing Island, Tortoise Island, Vero Beach, Barefoot Bay, Cape Canaveral, Cocoa, Grant Valkaria, Indialantic, Indian Harbour Beach, Malabar, Melbourne, Palm Bay, Rockledge, Satellite Beach, Titusville, West Melbourne and surrounding areas in Brevard and Central Florida.
Property Listing Data contained within this site is the property of Brevard MLS and is provided for consumers looking to purchase real estate. Any other use is prohibited. We are not responsible for errors and omissions on this web site. All information contained herein should be deemed reliable but not guaranteed, all representations are approximate, and individual verification is recommended.

Share: