Price: $3,000,000
No Address FoundFL
3,281
Square Foot
4
Bedrooms
4.00
Full Baths
1
½ Baths
Yes
Pool
No
Waterfront
2021
Year Built
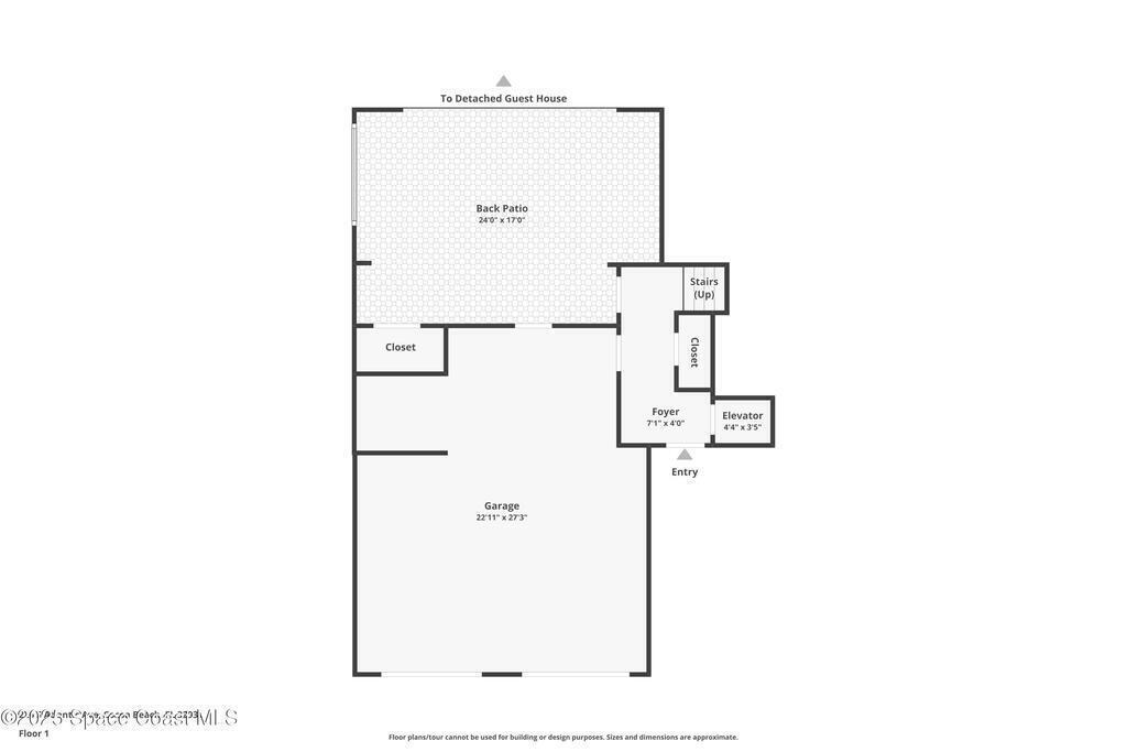
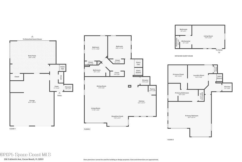
Property Description:
A professionally curated, income producing Powerhouse estate in Cocoa Beach, FL. There is a separate dwelling / in-law suite behind the pool. This Coastal Retreat has ocean views. Access to the beach is just across A1A. This luxury property is nestled on the west side of A1A. Watch the rocket launches form the front of the home or even in your pool. Feel the ocean breezes, & breathtaking sunrises. This nearly 4, 000 SF luxury residence sleeps 16, includes a fully separate in-law suite, and delivers consistent, verifiable six-figure income across both Airbnb and VRBO platforms. Perfect for the savvy investor. Boasting a 3 floor private elevator + handicap-accessible features. Whole-house generator & impact windows--built to endure and outperform. Heated saltwater pool with waterfall, & separate in law suite/efficiency dwelling. Every inch styled with art by renowned Cocoa Beach artist Eric LaMar--turnkey, unforgettable, and wildly Instagram-able. All furnishings included.
Exterior Features
Courtyard, Impact Windows, Outdoor Shower
Interior Features:
Breakfast Bar, Breakfast Nook, Built-in Features, Ceiling Fan(s), Eat-in Kitchen, Elevator, Entrance Foyer, Guest Suite, In-Law Floorplan, Kitchen Island, Open Floorplan, Pantry, Primary Bathroom -Tub with Separate Shower, Smart Thermostat, Split Bedrooms, Walk-In Closet(s)
Equipment / Appliances:
Convection Oven, Disposal, Double Oven, Dryer, Electric Oven, Electric Water Heater, ENERGY STAR Qualified Dishwasher, ENERGY STAR Qualified Refrigerator, ENERGY STAR Qualified Washer, Microwave, Plumbed For Ice Maker, Refrigerator, Washer
Utilities:
Cable Available, Electricity Available, Natural Gas Connected, Sewer Available, Sewer Connected, Water Available, Water Connected
Property Details
Street Name:
No Address
Listing Status:
Active
Home Style:
Contemporary, Multi Generational, Other
Floor:
Tile, Wood
Tax Year:
2023
Pool:
Yes
Private Pool:
Yes
Waterfront:
No
Pool Description:
Gas Heat, In Ground, Salt Water, Waterfall
Zip Code:
Construction:
Block, Composition Siding, Concrete, Other, Stucco
Roof Type:
Metal
Tax Amount:
$0
Furnishings:
Furnished
Home View:
Beach, Ocean, Water
Parking:
Attached, Garage, Garage Door Opener
HOA Dues:
$0.00

No Address Found FL
This listing is courtesy of EXP Realty, LLC.
Real Estate and Luxury homes in Melbourne Beach, Merritt Island, Cocoa Beach, Lansing Island, Tortoise Island, Vero Beach, Barefoot Bay, Cape Canaveral, Cocoa, Grant Valkaria, Indialantic, Indian Harbour Beach, Malabar, Melbourne, Palm Bay, Rockledge, Satellite Beach, Titusville, West Melbourne and surrounding areas in Brevard and Central Florida.
Property Listing Data contained within this site is the property of Brevard MLS and is provided for consumers looking to purchase real estate. Any other use is prohibited. We are not responsible for errors and omissions on this web site. All information contained herein should be deemed reliable but not guaranteed, all representations are approximate, and individual verification is recommended.

Share: