Price: $349,000
672 Sterling DriveKissimmee, FL 34758
2,219
Square Foot
4
Bedrooms
3.00
Full Baths
1
½ Baths
No
Pool
No
Waterfront
1995
Year Built
Property Description:
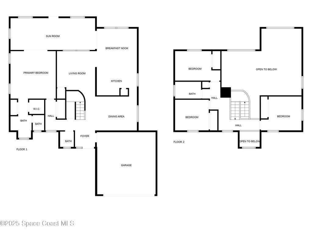
Great Bones in a Great Neighborhood! This charming 4-bedroom, 3-bath, 2-story home is ready for its next chapter. The inviting floor plan offers the primary suite on the main level, complete with a lovely en-suite for comfort and privacy. Enjoy an eat-in kitchen for casual meals, a formal dining room for special occasions, and a grand 2-story living room that's perfect for the holidays.Grab a drink and relax in the enclosed Florida room, ideal as an office, craft room, or simply a sunny retreat. Upstairs, you'll find three additional bedrooms and a full bath, offering plenty of space for family, guests, or hobbies.Outdoors, the backyard is a true gem with avocado and mango trees, and the side yard provides the perfect spot to add a refreshing pool. Nestled in a sought-after neighborhood, you'll be close to dining, shopping, and all of Orlando's world-class attractions.With its solid structure and timeless layout, this home is just waiting for your personal touch to make it your
Exterior Features
N/A
Interior Features:
Ceiling Fan(s), Eat-in Kitchen, Primary Bathroom - Shower No Tub, Skylight(s), Walk-In Closet(s)
Equipment / Appliances:
Dishwasher, Electric Cooktop, Electric Oven, Electric Water Heater, Refrigerator
Utilities:
Cable Available, Electricity Available, Electricity Connected, Water Connected
Property Details
Street Name:
County:
Osceola
Listing Status:
Active
Home Style:
Traditional
Floor:
Carpet, Tile
Pool:
No
Private Pool:
No
Waterfront:
No
Zip Code:
Subdivision:
None
Construction:
Concrete, Stucco
Roof Type:
Shingle
Tax Amount:
$0
Furnishings:
Unfurnished
Home View:
Trees/Woods
Parking:
Garage, Garage Door Opener
HOA Dues:
$0.00
Additional Rooms:
Bathroom 2, Bedroom 2, Bedroom 3, Bedroom 4, Dining Room, Kitchen, Living Room, Primary Bathroom, Primary Bedroom

672 Sterling Drive Kissimmee, FL 34758
This listing is courtesy of Weichert REALTORS Hallmark Pro.
Real Estate and Luxury homes in Melbourne Beach, Merritt Island, Cocoa Beach, Lansing Island, Tortoise Island, Vero Beach, Barefoot Bay, Cape Canaveral, Cocoa, Grant Valkaria, Indialantic, Indian Harbour Beach, Malabar, Melbourne, Palm Bay, Rockledge, Satellite Beach, Titusville, West Melbourne and surrounding areas in Brevard and Central Florida.
Property Listing Data contained within this site is the property of Brevard MLS and is provided for consumers looking to purchase real estate. Any other use is prohibited. We are not responsible for errors and omissions on this web site. All information contained herein should be deemed reliable but not guaranteed, all representations are approximate, and individual verification is recommended.

Share: