Price: $257,900
604 Greenwood Manor CircleWest Melbourne, FL 32904
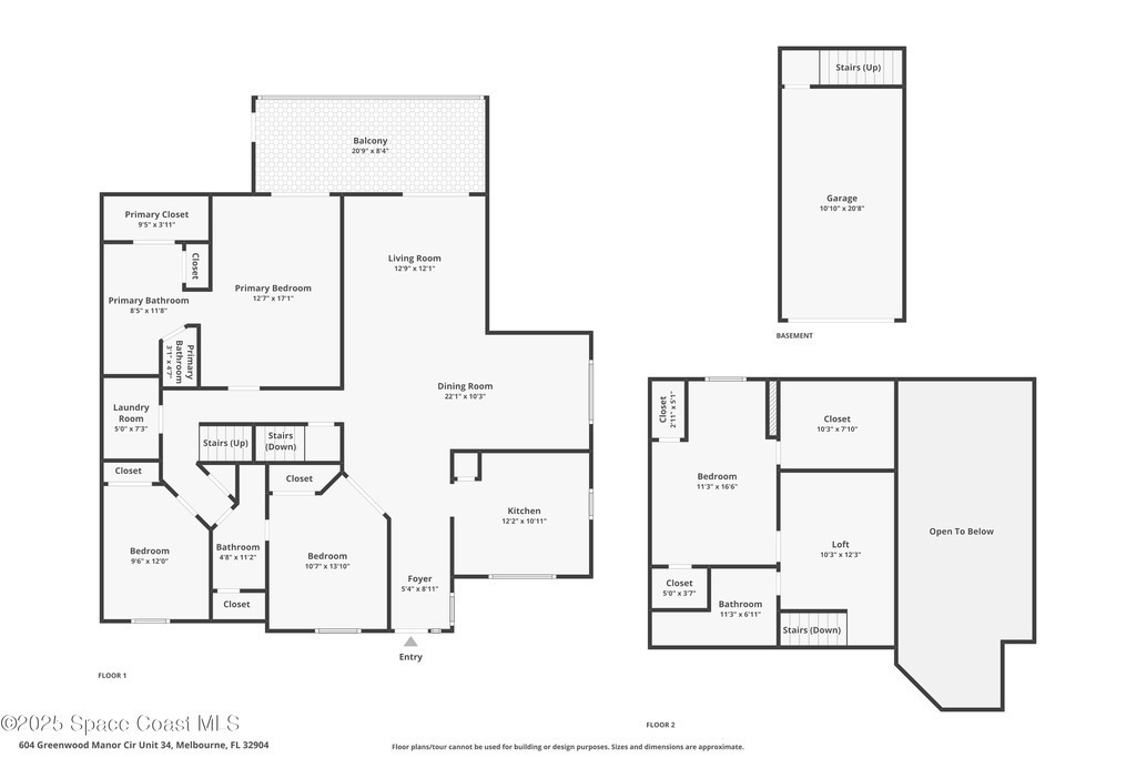
2,127
Square Foot
4
Bedrooms
3.00
Full Baths
N/A
½ Baths
No
Pool
No
Waterfront
1987
Year Built
Property Description:
PRICED TO SELL!!! Welcome to this beautifully updated 4-bedroom, 3-bathroom condo in the heart of West Melbourne, perfectly balancing comfort, style, and convenience. This spacious home features two primary suites on the first floor, each with private en-suite bathrooms. Upstairs, you'll find a versatile loft along with an additional bedroom offering three oversized closets for exceptional storage.The remodeled kitchen showcases sleek, modern finishes and flows seamlessly with new flooring throughout the entire home. Additional highlights include a separate laundry room, attached garage, and abundant storage.Step outside to your private screened balcony, an ideal spot to relax and enjoy the outdoors in comfort. Located in a well maintained community, the condo fee includes cable, internet, landscaping, heated pool, clubhouse, gym, pest control, exterior maintenance, and roof replacement providing a truly low maintenance lifestyle perfect for busy buyers.
Exterior Features
Balcony
Interior Features:
Butler Pantry, Ceiling Fan(s), Entrance Foyer, Guest Suite, Open Floorplan, Primary Bathroom - Tub with Shower, Primary Downstairs, Split Bedrooms, Vaulted Ceiling(s), Walk-In Closet(s)
Equipment / Appliances:
Electric Oven, Electric Range, Ice Maker, Microwave, Refrigerator, Washer/Dryer Stacked, Wine Cooler
Utilities:
Cable Connected, Electricity Connected, Sewer Connected, Water Connected
Property Details
Street Name:
County:
Brevard
Listing Status:
Active
Home Style:
Other
Floor:
Carpet, Laminate, Vinyl
Tax Year:
2023
Pool:
No
Private Pool:
No
Waterfront:
No
Zip Code:
Subdivision:
Indian River Groves and Gardens
Construction:
Brick Veneer, Frame, Stucco
Roof Type:
Shingle
Tax Amount:
$2,296
Furnishings:
Unfurnished
Home View:
Trees/Woods
Parking:
Additional Parking, Assigned, Attached, Garage, Garage Door Opener, Gated, Guest
HOA Dues:
$0.00

604 Greenwood Manor Circle West Melbourne, FL 32904
This listing is courtesy of Keller Williams Realty Brevard.
Real Estate and Luxury homes in Melbourne Beach, Merritt Island, Cocoa Beach, Lansing Island, Tortoise Island, Vero Beach, Barefoot Bay, Cape Canaveral, Cocoa, Grant Valkaria, Indialantic, Indian Harbour Beach, Malabar, Melbourne, Palm Bay, Rockledge, Satellite Beach, Titusville, West Melbourne and surrounding areas in Brevard and Central Florida.
Property Listing Data contained within this site is the property of Brevard MLS and is provided for consumers looking to purchase real estate. Any other use is prohibited. We are not responsible for errors and omissions on this web site. All information contained herein should be deemed reliable but not guaranteed, all representations are approximate, and individual verification is recommended.

Share: