Price: $2,100,000
5685 Lake Washington RoadMelbourne, FL 32934
3,256
Square Foot
4
Bedrooms
3.00
Full Baths
N/A
½ Baths
Yes
Pool
Yes
Waterfront
1971
Year Built
Property Description:
**ASSUMABLE 4.25% LOAN** Private Equestrian Oasis in the Heart of Melbourne - 5.5 Acres of Luxury LivingWelcome to your dream retreat -- a fully renovated 4-bedroom, 3-bathroom estate set on 5.5 secluded acres in the heart of Melbourne, Florida. This rare property offers a harmonious blend of tranquil country living with immediate access to upscale shopping, fine dining, and Florida's stunning coastline.From the moment you arrive beneath the newly constructed porte-cochere, you'll sense the craftsmanship and care that define this estate. Step inside to soaring vaulted ceilings with exposed beams, rich textures, and an inviting gas fireplace that anchors the open-concept living space. At the heart of the home is a chef's dream kitchen, equipped with premium Viking appliances, a gas range, and custom finishes -- all overlooking your private backyard sanctuary. Just outside, a newly built resort-style pool with dual sun shelves invites you to unwind or entertain in pure Florida
Exterior Features
Fire Pit, Impact Windows, Outdoor Kitchen, Storm Shutters
Interior Features:
Breakfast Bar, Ceiling Fan(s), Eat-in Kitchen, Kitchen Island, Open Floorplan, Primary Downstairs, Vaulted Ceiling(s), Walk-In Closet(s)
Equipment / Appliances:
Dishwasher, Disposal, Dryer, Electric Oven, Electric Water Heater, Freezer, Gas Cooktop, Microwave, Tankless Water Heater, Washer
Utilities:
Cable Connected, Electricity Connected, Propane
Property Details
Street Name:
County:
Brevard
Listing Status:
Active
Home Style:
Ranch
Floor:
Tile, Wood
Tax Year:
2024
Pool:
Yes
Private Pool:
Yes
Waterfront:
Yes
Water Type:
Pool Description:
Electric Heat, In Ground, Waterfall
Zip Code:
Subdivision:
None
Construction:
Block, Concrete, Stucco
Roof Type:
Metal
Tax Amount:
$7,332
Fireplace:
Electric
Furnishings:
Unfurnished
Home View:
Canal, Pool
Parking:
Additional Parking, Attached, Carport, Circular Driveway, Garage, RV Access/Parking
HOA Dues:
$0.00
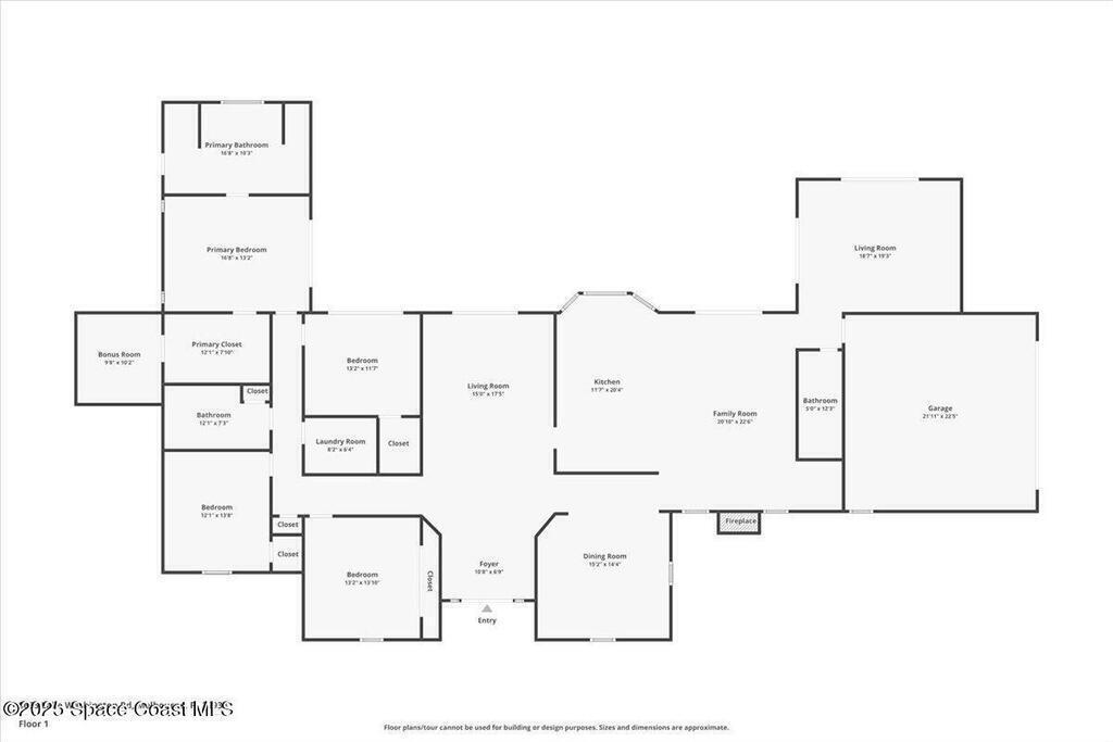
Additional Rooms:
Bathroom 4, Bedroom 2, Bedroom 3, Family Room, Kitchen, Primary Bedroom

5685 Lake Washington Road Melbourne, FL 32934
This listing is courtesy of The Agency Florida, LLC.
Real Estate and Luxury homes in Melbourne Beach, Merritt Island, Cocoa Beach, Lansing Island, Tortoise Island, Vero Beach, Barefoot Bay, Cape Canaveral, Cocoa, Grant Valkaria, Indialantic, Indian Harbour Beach, Malabar, Melbourne, Palm Bay, Rockledge, Satellite Beach, Titusville, West Melbourne and surrounding areas in Brevard and Central Florida.
Property Listing Data contained within this site is the property of Brevard MLS and is provided for consumers looking to purchase real estate. Any other use is prohibited. We are not responsible for errors and omissions on this web site. All information contained herein should be deemed reliable but not guaranteed, all representations are approximate, and individual verification is recommended.

Share: