Price: $995,000
104 W Osceola LaneCocoa Beach, FL 32931
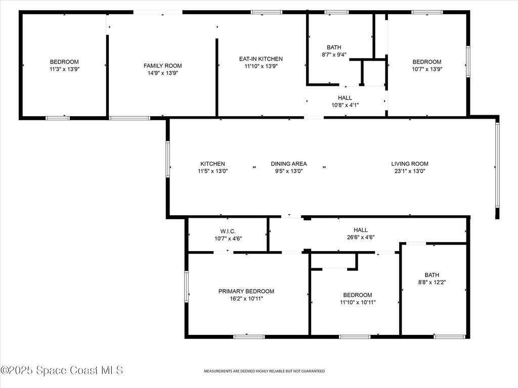
2,216
Square Foot
4
Bedrooms
2.00
Full Baths
N/A
½ Baths
No
Pool
No
Waterfront
1955
Year Built
Property Description:
Live the ultimate Cocoa Beach lifestyle on Florida's beautiful Space Coast! This unique property at 104 W Osceola is just a short walk to the beach and has been thoughtfully converted from a single-family home into a flexible duplex, offering two separate 2 bed/1 bath units--ideal for full-time living with rental income, a vacation home with guest/in-law suite, or multi-generational living.Enjoy peace of mind with a 220-mph rated metal roof and solar panels that produce near $0 electric bills. The home features tile flooring throughout and two beautifully renovated bathrooms with custom walk-in showers--plus a soaking tub in one for added comfort. Located just minutes from the Cocoa Beach Pier, Ron Jon Surf Shop, dining, and entertainment, this home puts you in the heart of coastal living. Whether you're seeking a primary residence, a vacation getaway, or a smart investment, this Cocoa Beach gem checks every box.
Exterior Features
Courtyard, Impact Windows, Outdoor Shower
Interior Features:
Ceiling Fan(s), Guest Suite, In-Law Floorplan, Split Bedrooms
Equipment / Appliances:
Dishwasher, Dryer, Electric Range, Microwave, Refrigerator, Washer, Washer/Dryer Stacked
Utilities:
Cable Available, Electricity Connected, Sewer Connected, Water Connected
Property Details
Street Name:
County:
Brevard
Listing Status:
Active
Home Style:
Multi Generational, Ranch
Floor:
Tile
Tax Year:
2023
Pool:
No
Private Pool:
No
Waterfront:
No
Zip Code:
Subdivision:
Cocoa Ocean Beach Subd
Construction:
Block, Concrete
Roof Type:
Metal
Tax Amount:
$3,273
Furnishings:
Furnished
Home View:
City
Parking:
RV Access/Parking
HOA Dues:
$0.00

104 W Osceola Lane Cocoa Beach, FL 32931
This listing is courtesy of Florida East Coast Real Estate.
Real Estate and Luxury homes in Melbourne Beach, Merritt Island, Cocoa Beach, Lansing Island, Tortoise Island, Vero Beach, Barefoot Bay, Cape Canaveral, Cocoa, Grant Valkaria, Indialantic, Indian Harbour Beach, Malabar, Melbourne, Palm Bay, Rockledge, Satellite Beach, Titusville, West Melbourne and surrounding areas in Brevard and Central Florida.
Property Listing Data contained within this site is the property of Brevard MLS and is provided for consumers looking to purchase real estate. Any other use is prohibited. We are not responsible for errors and omissions on this web site. All information contained herein should be deemed reliable but not guaranteed, all representations are approximate, and individual verification is recommended.

Share: