Price: $499,000
4955 Dixie HighwayPalm Bay, FL 32905
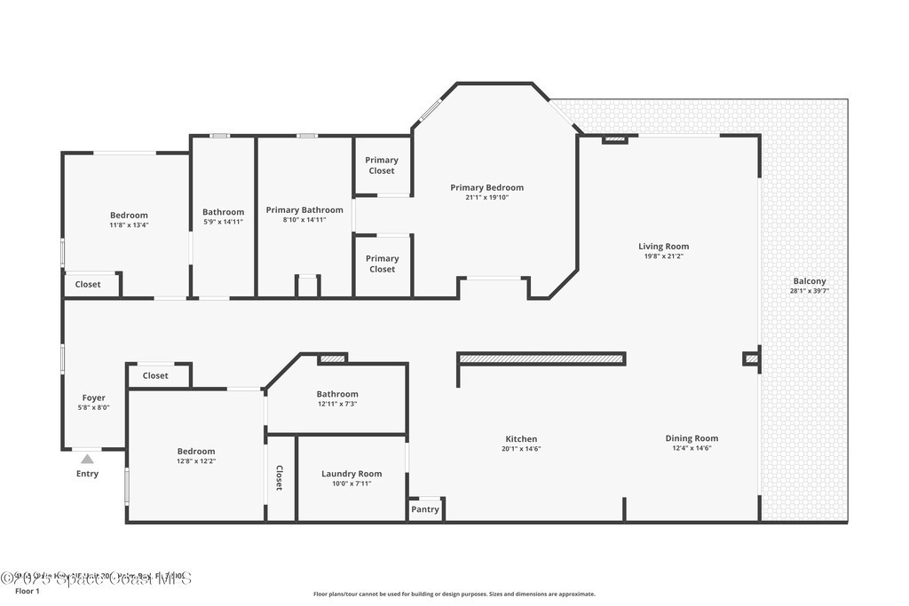
2,418
Square Foot
3
Bedrooms
3.00
Full Baths
N/A
½ Baths
No
Pool
Yes
Waterfront
2004
Year Built
Property Description:
Spacious. Updated. Waterfront. Enjoy sweeping Indian River views from this spacious 3BR/3BA waterfront condo offering 2, 418 sq ft, one of the largest floor plans in the building. The light-filled layout features a private balcony perfect for sunrises, dolphin watching, & rocket launches. Renovated primary suite w/ leathered granite vanity & designer tiled shower. Both guest beds include en-suite baths for added privacy. The kitchen is equipped with all-new appliances, abundant cabinetry, & Corian counters, ideal for everyday living/ entertaining. Major upgrades include 2025 water heater, 2022 accordion storm shutters, & 2024 roof. Resort-style amenities include riverfront heated pool, clubhouse, dock/pier, kayak storage, & two elevators -- delivering true low-maintenance waterfront living just minutes from beaches, shopping, dining, and healthcare.Whether you're searching for a full-time residence, seasonal retreat, or investment, this is Space Coast riverfront living at its finest.
Exterior Features
Balcony, Dock, Storm Shutters
Interior Features:
Breakfast Bar, Ceiling Fan(s), Kitchen Island, Open Floorplan, Pantry, Split Bedrooms, Walk-In Closet(s)
Equipment / Appliances:
Dishwasher, Disposal, Dryer, Electric Range, Electric Water Heater, Microwave, Refrigerator, Washer
Utilities:
Cable Available, Cable Connected, Electricity Available, Electricity Connected, Sewer Connected, Water Connected
Property Details
Street Name:
County:
Brevard
Listing Status:
Active
Floor:
Tile
Tax Year:
2023
Pool:
No
Private Pool:
No
Waterfront:
Yes
Water Type:
Zip Code:
Subdivision:
Venetian Bay Condo Ph I
Construction:
Block, Concrete, Stucco
Roof Type:
Membrane
Tax Amount:
$3,414
Furnishings:
Unfurnished
Home View:
Intracoastal, River, Water
Parking:
Additional Parking, Attached, Garage, Garage Door Opener
HOA Dues:
$0.00

4955 Dixie Highway Palm Bay, FL 32905
This listing is courtesy of Compass Florida, LLC.
Real Estate and Luxury homes in Melbourne Beach, Merritt Island, Cocoa Beach, Lansing Island, Tortoise Island, Vero Beach, Barefoot Bay, Cape Canaveral, Cocoa, Grant Valkaria, Indialantic, Indian Harbour Beach, Malabar, Melbourne, Palm Bay, Rockledge, Satellite Beach, Titusville, West Melbourne and surrounding areas in Brevard and Central Florida.
Property Listing Data contained within this site is the property of Brevard MLS and is provided for consumers looking to purchase real estate. Any other use is prohibited. We are not responsible for errors and omissions on this web site. All information contained herein should be deemed reliable but not guaranteed, all representations are approximate, and individual verification is recommended.

Share: