Price: $775,000
3260 Levanto DriveMelbourne, FL 32940
2,637
Square Foot
5
Bedrooms
3.00
Full Baths
N/A
½ Baths
Yes
Pool
No
Waterfront
2012
Year Built
Property Description:
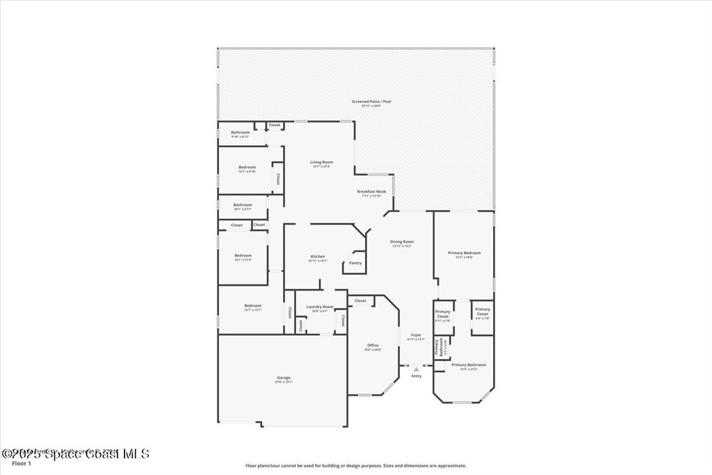
Welcome to this beautifully maintained and thoughtfully upgraded executive pool home in the coveted gated community of Levanto, Viera, where family-friendly living meets refined Florida luxury. From its timeless finishes to its extensive list of updates, this pool home reflects meticulous care, offering five spacious bedrooms, three full baths and a three car garage. Step into the foyer to discover soaring coffered ceilings, abundant natural light, and a flowing, airy layout that immediately feels like home. A flexible front room with French doors can serve as an office, den, or fifth bedroom, while the primary suite feels like a spa-inspired retreat, complete with a tray ceiling, serene pool views, and a spacious ensuite bathroom featuring an oversized walk-in shower, soaking tub, and two walk-in closets with custom storage systems.
Exterior Features
N/A
Interior Features:
Breakfast Bar, Breakfast Nook, Ceiling Fan(s), Eat-in Kitchen, Entrance Foyer, His and Hers Closets, Open Floorplan, Pantry, Primary Bathroom -Tub with Separate Shower, Smart Thermostat, Vaulted Ceiling(s), Walk-In Closet(s)
Equipment / Appliances:
Dishwasher, Disposal, Dryer, Electric Oven, Induction Cooktop, Microwave, Refrigerator, Washer
Utilities:
Cable Available, Electricity Connected, Sewer Connected, Water Connected
Property Details
Street Name:
County:
Brevard
Listing Status:
Active
Home Style:
Traditional
Floor:
Carpet, Tile, Vinyl
Tax Year:
2023
Pool:
Yes
Private Pool:
Yes
Waterfront:
No
Pool Description:
Electric Heat, Fenced, Heated, In Ground, Salt Water, Screen Enclosure
Zip Code:
Subdivision:
Levanto Subdivision
Construction:
Block, Stucco
Roof Type:
Tile
Tax Amount:
$6,725
Furnishings:
Unfurnished
Home View:
Trees/Woods
Parking:
Attached, Garage, Garage Door Opener
HOA Dues:
$0.00
Additional Rooms:
Bedroom 1, Bedroom 2, Bedroom 3, Dining Room, Kitchen, Living Room, Office, Primary Bedroom

3260 Levanto Drive Melbourne, FL 32940
This listing is courtesy of Real Broker, LLC.
Real Estate and Luxury homes in Melbourne Beach, Merritt Island, Cocoa Beach, Lansing Island, Tortoise Island, Vero Beach, Barefoot Bay, Cape Canaveral, Cocoa, Grant Valkaria, Indialantic, Indian Harbour Beach, Malabar, Melbourne, Palm Bay, Rockledge, Satellite Beach, Titusville, West Melbourne and surrounding areas in Brevard and Central Florida.
Property Listing Data contained within this site is the property of Brevard MLS and is provided for consumers looking to purchase real estate. Any other use is prohibited. We are not responsible for errors and omissions on this web site. All information contained herein should be deemed reliable but not guaranteed, all representations are approximate, and individual verification is recommended.

Share: