Price: $899,000
963 Spanish Wells DriveMelbourne, FL 32940
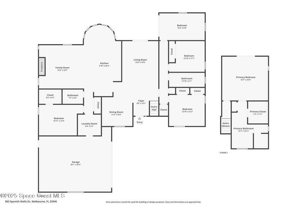
4,173
Square Foot
5
Bedrooms
3.00
Full Baths
N/A
½ Baths
Yes
Pool
No
Waterfront
1989
Year Built
Property Description:
Stunning executive pool home on an oversized corner lot in desirable Suntree. This move-in-ready beauty boasts a remodeled chef's kitchen with quartz counters, stainless appliances, butler's pantry, and designer backsplash. Luxury vinyl floors, crown molding, plantation shutters (2022), and a striking fireplace elevate the living space. Enjoy a metal roof (2020), hurricane-rated windows/doors (2022-23), and new HVAC (2024). The saltwater pool and gas spa were resurfaced (2020) with new pump/salt system (2024). Summer kitchen (2023), paver circle drive, fire pit, and deluxe vinyl fencing (2022) make outdoor living a dream. Upstairs primary suite features a custom closet, washer/dryer, private balcony (2022), and spa-like en-suite. Bonus upgrades: tankless water heater, irrigation system, built-in garage storage, gutters. Zoned for top schools and minutes to shopping and dining. Sophisticated, stylish, and fully turnkey!
Exterior Features
Fire Pit, Impact Windows, Outdoor Kitchen
Interior Features:
Breakfast Nook, Built-in Features, Butler Pantry, Ceiling Fan(s), Eat-in Kitchen, Kitchen Island, Primary Bathroom - Shower No Tub, Split Bedrooms, Vaulted Ceiling(s), Walk-In Closet(s)
Equipment / Appliances:
Dishwasher, Disposal, Double Oven, Dryer, Electric Cooktop, Microwave, Other, Refrigerator, Tankless Water Heater, Washer
Utilities:
Cable Connected, Electricity Connected, Natural Gas Connected, Sewer Connected, Water Connected
Property Details
Street Name:
County:
Brevard
Listing Status:
Active
Home Style:
Other, Traditional
Floor:
Marble, Tile, Vinyl
Tax Year:
2023
Pool:
Yes
Private Pool:
Yes
Waterfront:
No
Pool Description:
Gas Heat, Heated, Salt Water, Screen Enclosure
Zip Code:
Subdivision:
Spanish Wells at Suntree
Construction:
Brick, Frame, Stucco
Roof Type:
Metal
Tax Amount:
$5,831
Fireplace:
Gas
Furnishings:
Unfurnished
Parking:
Attached, Circular Driveway, Garage, Garage Door Opener
HOA Dues:
$0.00

963 Spanish Wells Drive Melbourne, FL 32940
This listing is courtesy of RE/MAX Aerospace Realty.
Real Estate and Luxury homes in Melbourne Beach, Merritt Island, Cocoa Beach, Lansing Island, Tortoise Island, Vero Beach, Barefoot Bay, Cape Canaveral, Cocoa, Grant Valkaria, Indialantic, Indian Harbour Beach, Malabar, Melbourne, Palm Bay, Rockledge, Satellite Beach, Titusville, West Melbourne and surrounding areas in Brevard and Central Florida.
Property Listing Data contained within this site is the property of Brevard MLS and is provided for consumers looking to purchase real estate. Any other use is prohibited. We are not responsible for errors and omissions on this web site. All information contained herein should be deemed reliable but not guaranteed, all representations are approximate, and individual verification is recommended.

Share: