Price: $675,000
2324 Aurora Road RoadMelbourne, FL 32935
0
Square Foot
20,000
Total Sq. Ft.
N/A
Bedrooms
8.00
Full Baths
N/A
½ Baths
No
Waterfront
2025
Year Built
Property Description:
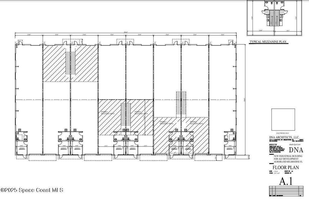
Pre-Construction Car Condos | Luxury Vehicle & RV Storage | Now Selling - Customize Your SpaceNow available for pre-sale: 8 high-end, temperature-controlled vehicle storage units located within a brand-new 20, 000 SF building, breaking ground October 2025. Each unit offers 2, 500 SF of premium storage space and is zoned heavy industrial, making it ideal for luxury car collections, RV storage, business inventory, or high-end personal use.Every unit features epoxy floors, a full private bathroom, and the option to add a wet bar, mezzanine loft, or combine multiple units in 2, 500 SF increments. The building will be fully fenced and gated, offering privacy and security in a centrally located industrial corridor.Pre-construction sales allow buyers the opportunity to custom-build their unit with upgrades prior to completion. Take advantage of this rare opportunity to secure high-spec storage or flex space tailored to your needs.
Exterior Features
N/A
Interior Features:
N/A
Equipment / Appliances:
N/A
Utilities:
N/A
Property Details
Street Name:
County:
Brevard
Listing Status:
Active
Tax Year:
2023
Waterfront:
No
Zip Code:
Subdivision:
Alton Thomas Acres Subd
Tax Amount:
$954
HOA Dues:
$0.00

2324 Aurora Road Road Melbourne, FL 32935
This listing is courtesy of Relentless Real Estate Co..
Real Estate and Luxury homes in Melbourne Beach, Merritt Island, Cocoa Beach, Lansing Island, Tortoise Island, Vero Beach, Barefoot Bay, Cape Canaveral, Cocoa, Grant Valkaria, Indialantic, Indian Harbour Beach, Malabar, Melbourne, Palm Bay, Rockledge, Satellite Beach, Titusville, West Melbourne and surrounding areas in Brevard and Central Florida.
Property Listing Data contained within this site is the property of Brevard MLS and is provided for consumers looking to purchase real estate. Any other use is prohibited. We are not responsible for errors and omissions on this web site. All information contained herein should be deemed reliable but not guaranteed, all representations are approximate, and individual verification is recommended.

Share: