Price: $379,900
606 Shorewood DriveCape Canaveral, FL 32920
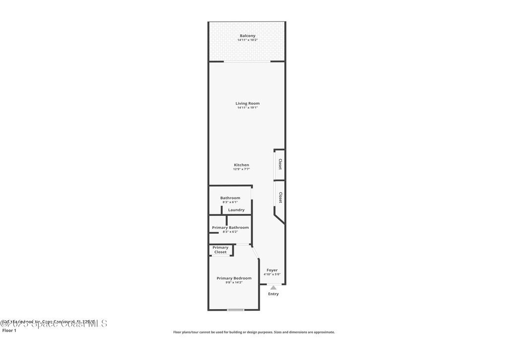
868
Square Foot
1
Bedrooms
2.00
Full Baths
1
½ Baths
No
Pool
Yes
Waterfront
1997
Year Built
Property Description:
Perfect Beach view Retreat! Shorewood is a hidden tropical, direct ocean front gated community offering resort-style living at its best. Enjoy a huge, heated pool with spa, clubhouse, gym, tennis, pickleball and outdoor BBQ. Features private beach access via two separate boardwalks with seating decks to enjoy the sunsets and ocean breezes. This beautifully updated 4th floor 1 bed, 1.5 bath condo has separate laundry area, and all newer stainless-steel appliances with minimal to no usage. The unit features a spacious north-facing balcony with a convenient brand-new electric rollup hurricane shutter. Enjoy the open views from inside the condo and watch the amazing cruise ships sailing by or the rockets launch right from your private balcony (a rare view to find).
Exterior Features
Balcony, Storm Shutters
Interior Features:
Breakfast Bar, Ceiling Fan(s), Entrance Foyer, Open Floorplan, Primary Bathroom - Shower No Tub
Equipment / Appliances:
Dishwasher, Dryer, Electric Range, Microwave, Refrigerator, Washer
Utilities:
Cable Available, Electricity Connected, Sewer Connected, Water Connected
Property Details
Street Name:
County:
Brevard
Listing Status:
Active
Floor:
Vinyl
Tax Year:
2023
Pool:
No
Private Pool:
No
Waterfront:
Yes
Water Type:
Zip Code:
Subdivision:
Shorewood Condo Ph II
Construction:
Concrete
Tax Amount:
$3,408
Furnishings:
Unfurnished
Home View:
Beach, Ocean, Water
Parking:
Garage, Garage Door Opener, Underground
HOA Dues:
$0.00

606 Shorewood Drive Cape Canaveral, FL 32920
This listing is courtesy of Compass Florida, LLC.
Real Estate and Luxury homes in Melbourne Beach, Merritt Island, Cocoa Beach, Lansing Island, Tortoise Island, Vero Beach, Barefoot Bay, Cape Canaveral, Cocoa, Grant Valkaria, Indialantic, Indian Harbour Beach, Malabar, Melbourne, Palm Bay, Rockledge, Satellite Beach, Titusville, West Melbourne and surrounding areas in Brevard and Central Florida.
Property Listing Data contained within this site is the property of Brevard MLS and is provided for consumers looking to purchase real estate. Any other use is prohibited. We are not responsible for errors and omissions on this web site. All information contained herein should be deemed reliable but not guaranteed, all representations are approximate, and individual verification is recommended.

Share: