Price: $999,999
7873 Desmond AvenueMelbourne, FL 32940
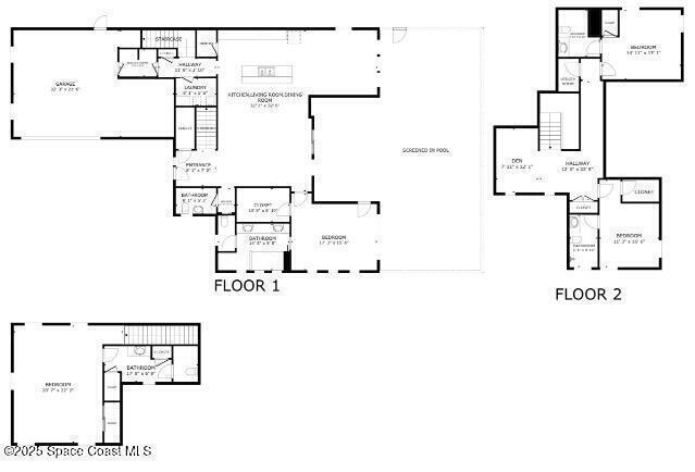
3,359
Square Foot
4
Bedrooms
5.00
Full Baths
1
½ Baths
Yes
Pool
Yes
Waterfront
2016
Year Built
Property Description:
Former model home with sweeping million-dollar lake views. Welcome to luxury living in one of Viera West's most sought-after locations. Perfectly positioned on one of the largest lakes in the area, this exceptional property offers unobstructed sunrise views across the water and preserve. Ensuring total privacy with no rear neighbors ever. From the moment you arrive, the stunning curb appeal and expansive paved driveway reflect the impeccable care and attention this home has received. Inside, you'll discover a level of cleanliness, maintenance, and pride of ownership rarely seen. Every surface shines. Every detail feels intentional. The thoughtfully designed floor plan features four bedrooms, each with its own en suite full bath--ideal for multi-generational living or hosting guests in complete comfort. The master suite is a true retreat, offering panoramic lake views, a custom walk-in closet, and a spa-inspired bath. Ceiling-height tiled shower, soaking tub, soft-touch dual vanities
Exterior Features
Impact Windows, Storm Shutters
Interior Features:
Breakfast Bar, Ceiling Fan(s), Eat-in Kitchen, Entrance Foyer, Kitchen Island, Open Floorplan, Pantry, Primary Bathroom - Tub with Shower, Primary Bathroom -Tub with Separate Shower, Primary Downstairs, Split Bedrooms, Walk-In Closet(s)
Equipment / Appliances:
Dishwasher, Disposal, Dryer, Gas Range, Ice Maker, Microwave, Plumbed For Ice Maker, Refrigerator, Tankless Water Heater, Washer
Utilities:
Cable Connected, Electricity Connected, Natural Gas Connected, Sewer Connected, Water Connected
Property Details
Street Name:
County:
Brevard
Listing Status:
Active
Home Style:
Contemporary, Spanish
Floor:
Carpet, Tile
Tax Year:
2023
Pool:
Yes
Private Pool:
Yes
Waterfront:
Yes
Water Type:
Pool Description:
Gas Heat, Heated, In Ground, Salt Water, Screen Enclosure
Zip Code:
Subdivision:
Reeling Park
Construction:
Block, Frame, Stucco
Roof Type:
Tile
Tax Amount:
$7,147
Furnishings:
Negotiable
Home View:
Lake, Pond, Protected Preserve
Parking:
Attached, Garage, Garage Door Opener
HOA Dues:
$0.00

7873 Desmond Avenue Melbourne, FL 32940
This listing is courtesy of EXP Realty, LLC.
Real Estate and Luxury homes in Melbourne Beach, Merritt Island, Cocoa Beach, Lansing Island, Tortoise Island, Vero Beach, Barefoot Bay, Cape Canaveral, Cocoa, Grant Valkaria, Indialantic, Indian Harbour Beach, Malabar, Melbourne, Palm Bay, Rockledge, Satellite Beach, Titusville, West Melbourne and surrounding areas in Brevard and Central Florida.
Property Listing Data contained within this site is the property of Brevard MLS and is provided for consumers looking to purchase real estate. Any other use is prohibited. We are not responsible for errors and omissions on this web site. All information contained herein should be deemed reliable but not guaranteed, all representations are approximate, and individual verification is recommended.

Share: