Price: $438,360
534 Mimosa StreetPalm Bay, FL 32908
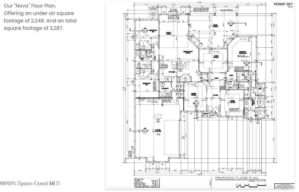
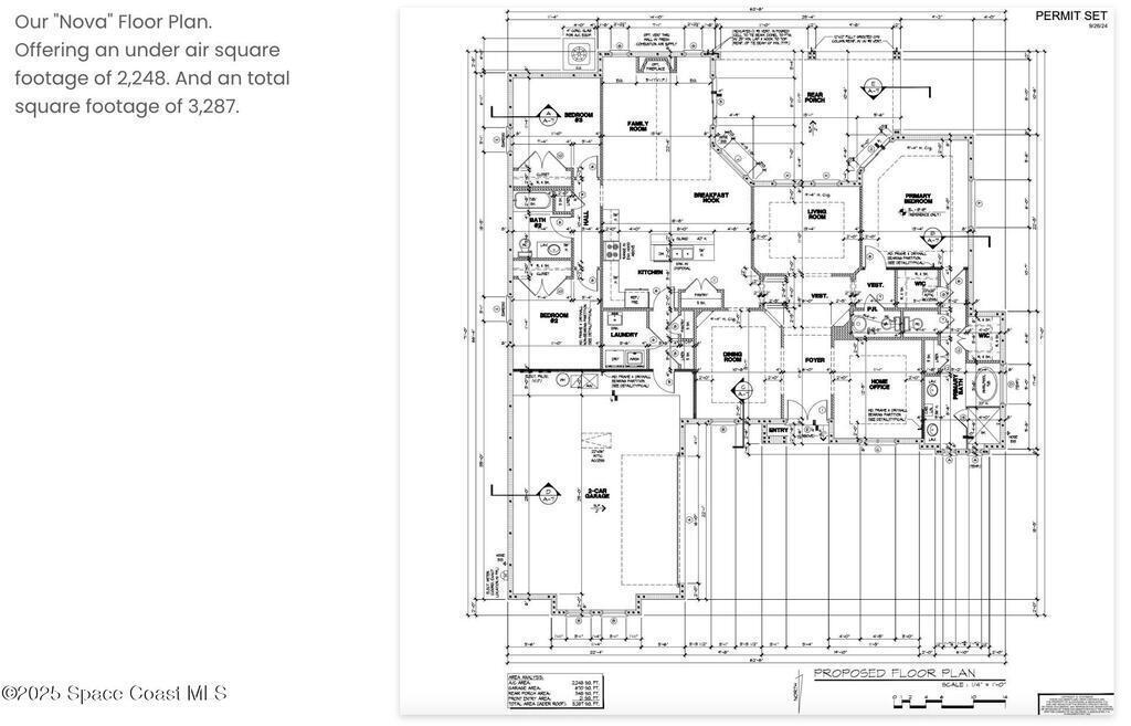
2,248
Square Foot
4
Bedrooms
3.00
Full Baths
1
½ Baths
No
Pool
No
Waterfront
2025
Year Built
Property Description:
* BUYER FINANCING FELL THROUGH * Discover elevated living in the ''Nova, '' a 2, 248 sq. ft. luxury residence under construction now. This 4-bed, 2.5-bath home under includes a formal dining room, expansive kitchen, living and family rooms. High-end finishes abound. 10' ceilings throughout, 11' in the tray ceiling, 8' doors, 51/4'' baseboards, quartz countertops, and designer lighting and ceiling fans. Elegant tile graces the main living areas, while plush carpet with upgraded padding adds warmth to bedrooms and the family room. Spa-inspired primary suite features both a free-standing soaking tub and large tiled shower. Oversized garage has 10' ceilings and ample space. Seamless indoor-outdoor living with an oversized porch under truss. Built with impact-rated windows and doors, and backed by a builder's warranty, this home offers enduring quality and timeless appeal. $15, 000 flex cash toward closing costs and interest rate buydown. Stop at the model home to learn more.
Exterior Features
Impact Windows
Interior Features:
Breakfast Nook, Ceiling Fan(s), Eat-in Kitchen, Entrance Foyer, Kitchen Island, Pantry, Primary Bathroom -Tub with Separate Shower, Split Bedrooms, Vaulted Ceiling(s), Walk-In Closet(s)
Equipment / Appliances:
Dishwasher, Electric Range, Electric Water Heater, Microwave, Refrigerator
Utilities:
Cable Available
Property Details
Street Name:
County:
Brevard
Listing Status:
Active
Floor:
Carpet, Tile
Pool:
No
Private Pool:
No
Waterfront:
No
Zip Code:
Subdivision:
Port Malabar Unit 31
Construction:
Block, Concrete, Stone Veneer, Stucco
Tax Amount:
$0
Furnishings:
Unfurnished
Parking:
Garage, Garage Door Opener
HOA Dues:
$0.00

534 Mimosa Street Palm Bay, FL 32908
This listing is courtesy of Coldwell Banker Realty.
Real Estate and Luxury homes in Melbourne Beach, Merritt Island, Cocoa Beach, Lansing Island, Tortoise Island, Vero Beach, Barefoot Bay, Cape Canaveral, Cocoa, Grant Valkaria, Indialantic, Indian Harbour Beach, Malabar, Melbourne, Palm Bay, Rockledge, Satellite Beach, Titusville, West Melbourne and surrounding areas in Brevard and Central Florida.
Property Listing Data contained within this site is the property of Brevard MLS and is provided for consumers looking to purchase real estate. Any other use is prohibited. We are not responsible for errors and omissions on this web site. All information contained herein should be deemed reliable but not guaranteed, all representations are approximate, and individual verification is recommended.

Share: