Price: $175,000
1095 Country Club DriveTitusville, FL 32780
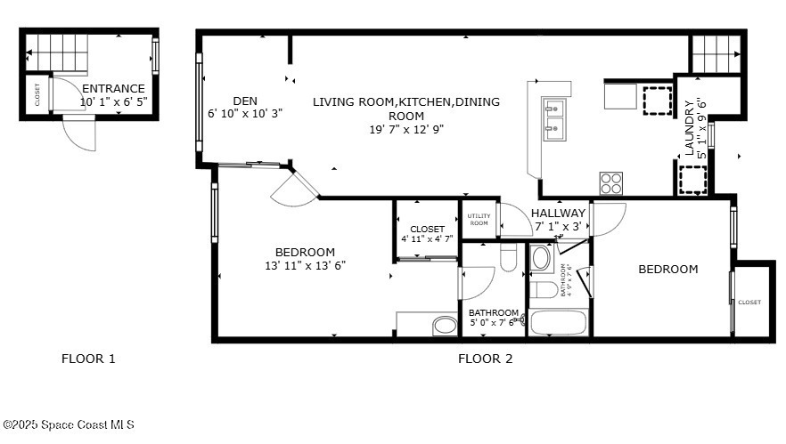
1,010
Square Foot
2
Bedrooms
2.00
Full Baths
N/A
½ Baths
No
Pool
No
Waterfront
1987
Year Built
Property Description:
Welcome to this beautifully maintained 2-bedroom, 2-bathroom condo in the highly sought-after Club Haciendas community, located right on the lush greens of the La Cita Golf Course. This spacious second-floor unit offers over 1, 000 square feet of comfortable living with serene views and an open-concept layout. Enjoy a bright and airy living space, a well-appointed kitchen with ample cabinetry, and a private screened-in balcony that overlooks the sparkling community pool--perfect for relaxing with your morning coffee or evening sunsets. The primary suite includes an en-suite bath and generous closet space, and the unit comes fully furnished, making it move-in ready! Residents enjoy access to a well-kept community with beautiful landscaping and a peaceful atmosphere ideal for walking, biking, or simply enjoying the Florida lifestyle. Conveniently located near shopping, dining, historic downtown Titusville.
Exterior Features
Balcony, Outdoor Kitchen
Interior Features:
Breakfast Bar, Ceiling Fan(s), Entrance Foyer, Split Bedrooms, Vaulted Ceiling(s), Walk-In Closet(s)
Equipment / Appliances:
Dishwasher, Electric Range, Ice Maker, Microwave, Refrigerator, Washer/Dryer Stacked
Utilities:
Cable Connected, Electricity Connected, Sewer Connected, Water Connected
Property Details
Street Name:
County:
Brevard
Listing Status:
Active
Home Style:
Contemporary
Floor:
Carpet, Tile, Vinyl
Tax Year:
2024
Pool:
No
Private Pool:
No
Waterfront:
No
Zip Code:
Subdivision:
Club Haciendas Condo Ph II
Construction:
Frame, Stucco
Tax Amount:
$419
Furnishings:
Furnished
Home View:
Pool
Parking:
Unassigned
HOA Dues:
$0.00

1095 Country Club Drive Titusville, FL 32780
This listing is courtesy of RE/MAX Aerospace Realty.
Real Estate and Luxury homes in Melbourne Beach, Merritt Island, Cocoa Beach, Lansing Island, Tortoise Island, Vero Beach, Barefoot Bay, Cape Canaveral, Cocoa, Grant Valkaria, Indialantic, Indian Harbour Beach, Malabar, Melbourne, Palm Bay, Rockledge, Satellite Beach, Titusville, West Melbourne and surrounding areas in Brevard and Central Florida.
Property Listing Data contained within this site is the property of Brevard MLS and is provided for consumers looking to purchase real estate. Any other use is prohibited. We are not responsible for errors and omissions on this web site. All information contained herein should be deemed reliable but not guaranteed, all representations are approximate, and individual verification is recommended.

Share: