Price: $450,000
764 Laika RoadPalm Bay, FL 32908
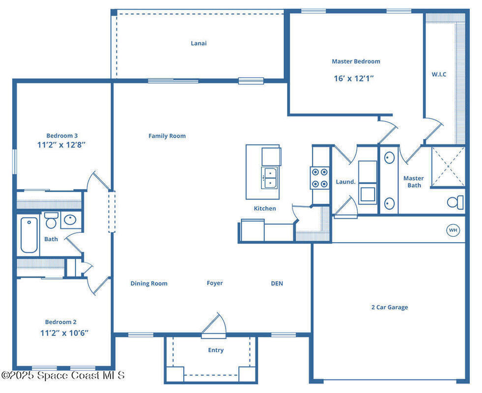
1,663
Square Foot
3
Bedrooms
2.00
Full Baths
N/A
½ Baths
No
Pool
No
Waterfront
2025
Year Built
Property Description:
Estimated Completion: July 2025Let natural light pour into your kitchen and living room while watching your partner cook a few steaks outside. As with all our thoughtfully designed homes, the open area between the kitchen, living room, and dining room makes entertaining a breeze.His & Her sinks and a roomy shower in the master bathroom makes every morning a delight, and the walk-in closet gives you as much space as you need to look and feel your very best. With a two-car garage that leaves more than enough room for a little extra storage, you'll be more than pleased when you step into a brighter future.Green Energy Generation: SolarGreen Energy Features: Appliances, Construction, Energy Monitoring System, HVAC, Insulation, Lighting, Roof, Thermostat, Water Heater, Windows
Exterior Features
N/A
Interior Features:
Entrance Foyer, Kitchen Island, Open Floorplan, Pantry, Primary Bathroom - Shower No Tub, Primary Downstairs, Smart Home, Smart Thermostat, Walk-In Closet(s)
Equipment / Appliances:
Disposal, Electric Range, ENERGY STAR Qualified Dishwasher, ENERGY STAR Qualified Refrigerator, ENERGY STAR Qualified Water Heater, Microwave, Water Softener Owned
Utilities:
Electricity Connected, Sewer Connected, Water Connected
Property Details
Street Name:
County:
Brevard
Listing Status:
Active
Floor:
Carpet, Vinyl
Tax Year:
2022
Pool:
No
Private Pool:
No
Waterfront:
No
Zip Code:
Subdivision:
Port Malabar Unit 49
Construction:
Block, Concrete, Stone, Stucco
Roof Type:
Shingle
Tax Amount:
$202
Furnishings:
Unfurnished
Parking:
Attached, Garage
HOA Dues:
$0.00
Additional Rooms:
Kitchen, Living Room, Office, Primary Bedroom

764 Laika Road Palm Bay, FL 32908
This listing is courtesy of EcoSun Realty.
Real Estate and Luxury homes in Melbourne Beach, Merritt Island, Cocoa Beach, Lansing Island, Tortoise Island, Vero Beach, Barefoot Bay, Cape Canaveral, Cocoa, Grant Valkaria, Indialantic, Indian Harbour Beach, Malabar, Melbourne, Palm Bay, Rockledge, Satellite Beach, Titusville, West Melbourne and surrounding areas in Brevard and Central Florida.
Property Listing Data contained within this site is the property of Brevard MLS and is provided for consumers looking to purchase real estate. Any other use is prohibited. We are not responsible for errors and omissions on this web site. All information contained herein should be deemed reliable but not guaranteed, all representations are approximate, and individual verification is recommended.

Share: