Price: $799,000
511 Moray PlaceMelbourne Beach, FL 32951
2,071
Square Foot
3
Bedrooms
3.00
Full Baths
1
½ Baths
No
Pool
Yes
Waterfront
2005
Year Built
Property Description:
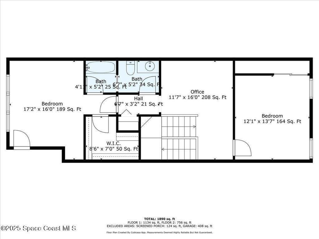
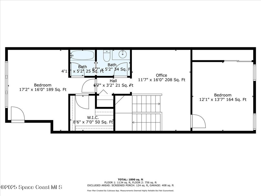
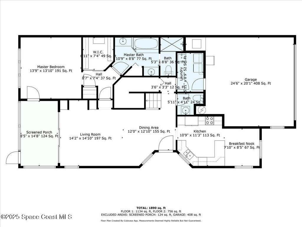
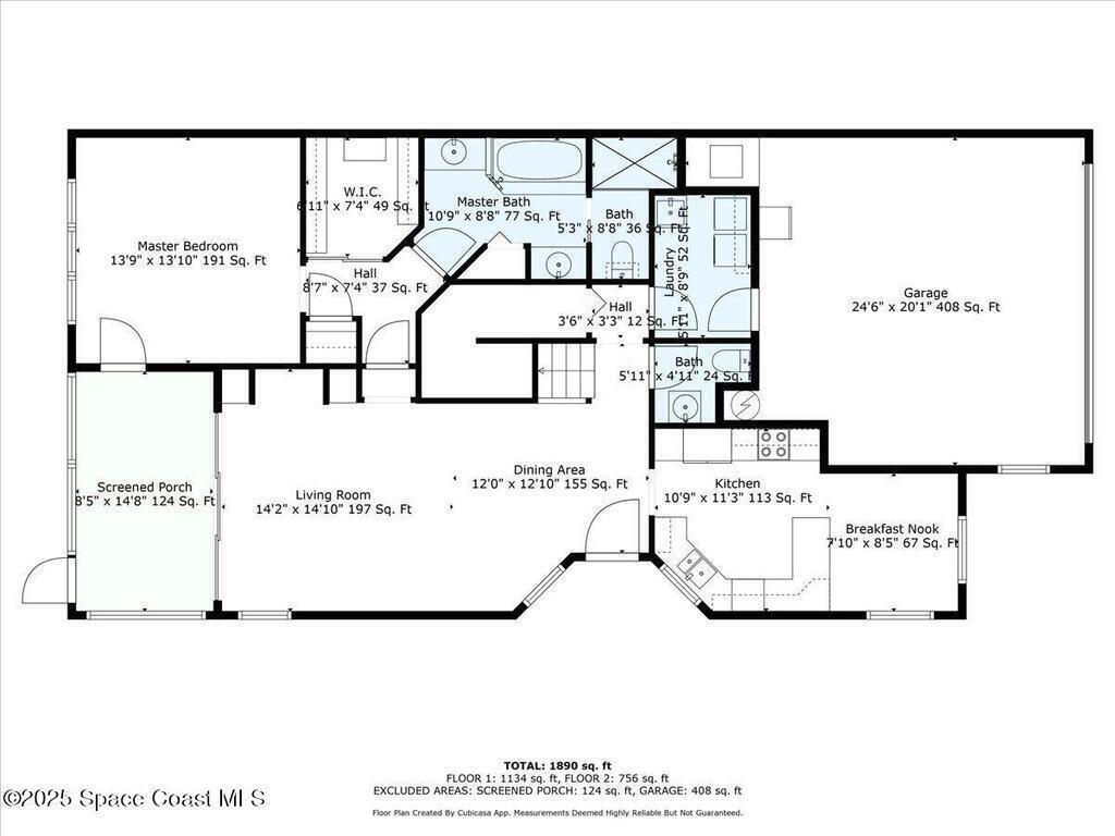
This charming townhouse offers stunning river views, a navigable canal, and direct river access for motorboats. Enjoy the convenience of a private dock with a lift. This 3-bedroom, 2.5-bath home features a first-floor master suite and spacious two-story living. Take in breathtaking sunset views from both upper and lower balconies. The kitchen boasts granite countertops, wood cabinetry, and a cozy nook area. Thoughtful upgrades include plantation shutters, Hunter ceiling fans, crown molding, Rosewood flooring, and full storm shutters. Located in a sought-after gated community, residents enjoy private beach access, a pool with cabana, tennis courts, and a fishing pier. Don't miss this exceptional waterfront lifestyle opportunity!
Exterior Features
Balcony, Boat Lift, Boat Slip, Storm Shutters
Interior Features:
Breakfast Nook, Built-in Features, Ceiling Fan(s), Eat-in Kitchen, Open Floorplan, Primary Bathroom -Tub with Separate Shower, Primary Downstairs, Skylight(s), Split Bedrooms, Vaulted Ceiling(s), Walk-In Closet(s)
Equipment / Appliances:
Dishwasher, Electric Range, Microwave, Refrigerator
Utilities:
Cable Connected, Electricity Connected, Sewer Connected, Water Connected
Property Details
Street Name:
County:
Brevard
Listing Status:
Active
Floor:
Carpet, Tile, Vinyl
Tax Year:
2024
Pool:
No
Private Pool:
No
Waterfront:
Yes
Water Type:
Zip Code:
Subdivision:
Indian Landing Riverside
Construction:
Block, Frame, Stucco
Roof Type:
Tile
Tax Amount:
$6,305
Furnishings:
Negotiable
Home View:
Protected Preserve, Water
Parking:
Garage, Garage Door Opener, On Street, RV Access/Parking
HOA Dues:
$0.00

511 Moray Place Melbourne Beach, FL 32951
This listing is courtesy of One Sotheby's International.
Real Estate and Luxury homes in Melbourne Beach, Merritt Island, Cocoa Beach, Lansing Island, Tortoise Island, Vero Beach, Barefoot Bay, Cape Canaveral, Cocoa, Grant Valkaria, Indialantic, Indian Harbour Beach, Malabar, Melbourne, Palm Bay, Rockledge, Satellite Beach, Titusville, West Melbourne and surrounding areas in Brevard and Central Florida.
Property Listing Data contained within this site is the property of Brevard MLS and is provided for consumers looking to purchase real estate. Any other use is prohibited. We are not responsible for errors and omissions on this web site. All information contained herein should be deemed reliable but not guaranteed, all representations are approximate, and individual verification is recommended.

Share: