Price: $669,000
140 Warsteiner WayMelbourne Beach, FL 32951
2,216
Square Foot
3
Bedrooms
4.00
Full Baths
1
½ Baths
No
Pool
No
Waterfront
2007
Year Built
Property Description:
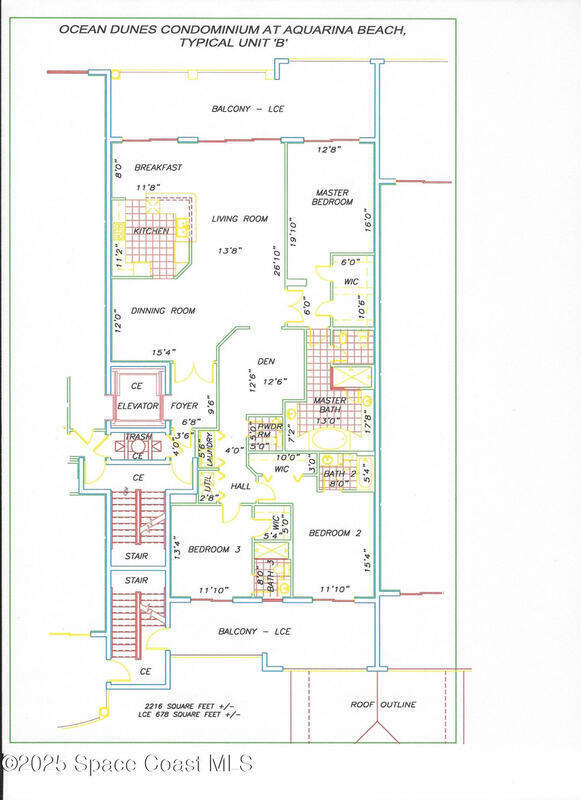
Now's the time to buy OCEAN DUNES' MOST DESIRABLE ''02'' FLOORPLAN at an incredibly low price. This exceptional 3rd floor 3 bedroom/3.5 bath luxury condominium features over 2200 sf of living space w private elevator, high ceilings & 2 spacious PRIVATE balconies w ocean & golf course views. The open floorplan offers an ocean view living room, beautiful kitchen w light wood cabinetry, granite counters & stainless appliances, breakfast nook, formal dining room, 3 ensuite bedrooms plus an extra den or office! 2017 A/C, new Hot Water Heater, 2019 Roof, Storm Shutters. Ocean Dunes Condos features elegant secure lobbies, a gorgeous, heated swimming pool w sundeck, resident grill & firepit, under building parking and ample open parking. Enjoy the dream Florida lifestyle in Aquarina Beach & CC, a gated ocean-to-river community w Oceanfront Clubhouse, Golf, Tennis, River Pier, Fitness, Bar and Grille & more!
Exterior Features
Balcony, Storm Shutters
Interior Features:
Breakfast Bar, Breakfast Nook, Built-in Features, Ceiling Fan(s), Open Floorplan, Primary Bathroom -Tub with Separate Shower, Split Bedrooms, Walk-In Closet(s)
Equipment / Appliances:
Dishwasher, Disposal, Dryer, Electric Range, Electric Water Heater, Microwave, Refrigerator, Washer
Utilities:
Cable Available, Electricity Connected, Sewer Connected, Water Connected
Property Details
Street Name:
County:
Brevard
Listing Status:
Active
Floor:
Carpet, Tile
Tax Year:
2024
Pool:
No
Private Pool:
No
Waterfront:
No
Zip Code:
Subdivision:
Ocean Dunes Condominium at Aquarina Beach Ph I
Construction:
Concrete, Stucco
Roof Type:
Concrete, Membrane
Tax Amount:
$8,233
Furnishings:
Unfurnished
Home View:
Golf Course, Ocean, Trees/Woods
Parking:
Additional Parking, Assigned, Garage, Garage Door Opener, Underground
HOA Dues:
$0.00

140 Warsteiner Way Melbourne Beach, FL 32951
This listing is courtesy of Dale Sorensen Real Estate Inc..
Real Estate and Luxury homes in Melbourne Beach, Merritt Island, Cocoa Beach, Lansing Island, Tortoise Island, Vero Beach, Barefoot Bay, Cape Canaveral, Cocoa, Grant Valkaria, Indialantic, Indian Harbour Beach, Malabar, Melbourne, Palm Bay, Rockledge, Satellite Beach, Titusville, West Melbourne and surrounding areas in Brevard and Central Florida.
Property Listing Data contained within this site is the property of Brevard MLS and is provided for consumers looking to purchase real estate. Any other use is prohibited. We are not responsible for errors and omissions on this web site. All information contained herein should be deemed reliable but not guaranteed, all representations are approximate, and individual verification is recommended.

Share: