Price: $1,500,000
6434 Modern Duran DriveMelbourne, FL 32940
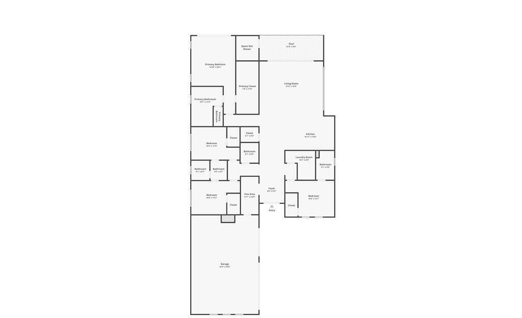
2,850
Square Foot
4
Bedrooms
5.00
Full Baths
2
½ Baths
Yes
Pool
No
Waterfront
2024
Year Built
Property Description:
72 HR. KICK OUT CLAUSE! This mid-century modern masterpiece is a contemporary showstopper! BRAND-NEW CONSTRUCTION boasts expansive impact-rated windows & sliders framing views of the esteemed Duran Golf Course, a glittery lake & a fountain pool/spa. Towering ceilings soar over stunning wood-look floors that unite open-concept living & dining. White quartz countertops sweep across a high-end island kitchen featuring gray cabinetry, sleek Bosch SS appliances, a wall oven/micro, gas cooktop & large walk-in pantry. The sunlit great rm w/floating entertainment center highlights a quad slider to the patio. Luxe owner's retreat w/personal pool access, a HUGE custom walk-in closet, a striking glass-enclosed tub & dual-head shower. Jack & Jill bath links 2 spacious guest rms, while the 4th bdrm enjoys a private tub/shower ensuite. Mudroom & convenient cabana bath! A premier grill station & covered lanai overlook the shimmering pool & golf course greens.
Exterior Features
Impact Windows
Interior Features:
Breakfast Bar, Built-in Features, Entrance Foyer, Guest Suite, Jack and Jill Bath, Kitchen Island, Open Floorplan, Pantry, Primary Bathroom -Tub with Separate Shower, Smart Thermostat, Walk-In Closet(s)
Equipment / Appliances:
Dishwasher, Disposal, Electric Cooktop, Electric Oven, Freezer, Gas Range, Microwave, Refrigerator, Tankless Water Heater
Utilities:
Electricity Connected, Sewer Connected, Water Connected
Property Details
Street Name:
County:
Brevard
Listing Status:
Active
Home Style:
Contemporary, Mid-Century Modern
Floor:
Carpet, Tile
Tax Year:
2023
Pool:
Yes
Private Pool:
Yes
Waterfront:
No
Pool Description:
Fenced, In Ground, Waterfall
Zip Code:
Subdivision:
Modern Duran
Construction:
Block, Concrete
Roof Type:
Membrane
Tax Amount:
$1,528
Furnishings:
Unfurnished
Home View:
Golf Course, Lake, Pool
Parking:
Attached, Garage, Garage Door Opener
HOA Dues:
$0.00

6434 Modern Duran Drive Melbourne, FL 32940
This listing is courtesy of Compass Florida, LLC.
Real Estate and Luxury homes in Melbourne Beach, Merritt Island, Cocoa Beach, Lansing Island, Tortoise Island, Vero Beach, Barefoot Bay, Cape Canaveral, Cocoa, Grant Valkaria, Indialantic, Indian Harbour Beach, Malabar, Melbourne, Palm Bay, Rockledge, Satellite Beach, Titusville, West Melbourne and surrounding areas in Brevard and Central Florida.
Property Listing Data contained within this site is the property of Brevard MLS and is provided for consumers looking to purchase real estate. Any other use is prohibited. We are not responsible for errors and omissions on this web site. All information contained herein should be deemed reliable but not guaranteed, all representations are approximate, and individual verification is recommended.

Share: