Price: $4,300,000
5795 Highway A1AMelbourne Beach, FL 32951
3,692
Square Foot
5
Bedrooms
5.00
Full Baths
1
½ Baths
No
Pool
Yes
Waterfront
1996
Year Built
Property Description:
OCEANFRONT SINGLE FAMILY HOUSE- 5 bedrooms and 4.5 baths- Stunning oceanfront luxury property, with 3 en suites, located in a prime location- close to two 18-hole golf courses, the Sebastian Inlet, the Melbourne Beach Pier, Vero Beach, and all the best of Florida living.Situated on an expansive .82-acre property with 100 feet of Oceanfront frontage, this residence offers breathtaking panoramic ocean views with impact windows and sliders throughout. Enjoy the outdoors with a large composite balcony, beach crossover, and a spacious seating area, perfect for relaxation or hosting gatherings. An additional balcony offers stunning west facing sunset views. With an expansive 2-car garage and extended driveway, this property provides ample parking, including plenty of space for RV or boat storage.
Exterior Features
Balcony, Impact Windows, Other, Outdoor Shower
Interior Features:
Ceiling Fan(s), Entrance Foyer, Guest Suite, In-Law Floorplan, Kitchen Island, Open Floorplan, Pantry, Primary Bathroom -Tub with Separate Shower, Split Bedrooms
Equipment / Appliances:
Dishwasher, Disposal, Dryer, Electric Oven, Electric Range, Microwave, Refrigerator, Washer
Utilities:
Cable Connected, Electricity Connected, Water Connected
Property Details
Street Name:
County:
Brevard
Listing Status:
Active
Floor:
Carpet, Tile, Vinyl
Tax Year:
2023
Pool:
No
Private Pool:
No
Waterfront:
Yes
Water Type:
Zip Code:
Subdivision:
None
Construction:
Block, Concrete, Frame, Stucco
Roof Type:
Metal
Tax Amount:
$25,073
Fireplace:
Other
Furnishings:
Negotiable
Home View:
Beach, Intracoastal, Ocean, Trees/Woods, Water
Parking:
Additional Parking, Attached, Circular Driveway, Garage, Garage Door Opener, Guest, RV Access/Parking
HOA Dues:
$0.00
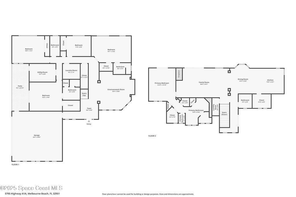
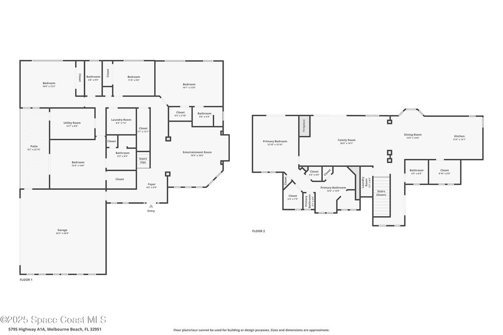
Additional Rooms:
Bedroom 2, Bedroom 3, Bedroom 4, Bedroom 5, Dining Room, Family Room, Kitchen, Living Room, Other Room, Primary Bedroom, Utility Room

5795 Highway A1A Melbourne Beach, FL 32951
This listing is courtesy of Compass Florida LLC.
Real Estate and Luxury homes in Melbourne Beach, Merritt Island, Cocoa Beach, Lansing Island, Tortoise Island, Vero Beach, Barefoot Bay, Cape Canaveral, Cocoa, Grant Valkaria, Indialantic, Indian Harbour Beach, Malabar, Melbourne, Palm Bay, Rockledge, Satellite Beach, Titusville, West Melbourne and surrounding areas in Brevard and Central Florida.
Property Listing Data contained within this site is the property of Brevard MLS and is provided for consumers looking to purchase real estate. Any other use is prohibited. We are not responsible for errors and omissions on this web site. All information contained herein should be deemed reliable but not guaranteed, all representations are approximate, and individual verification is recommended.

Share: